青葉台XYSTビル
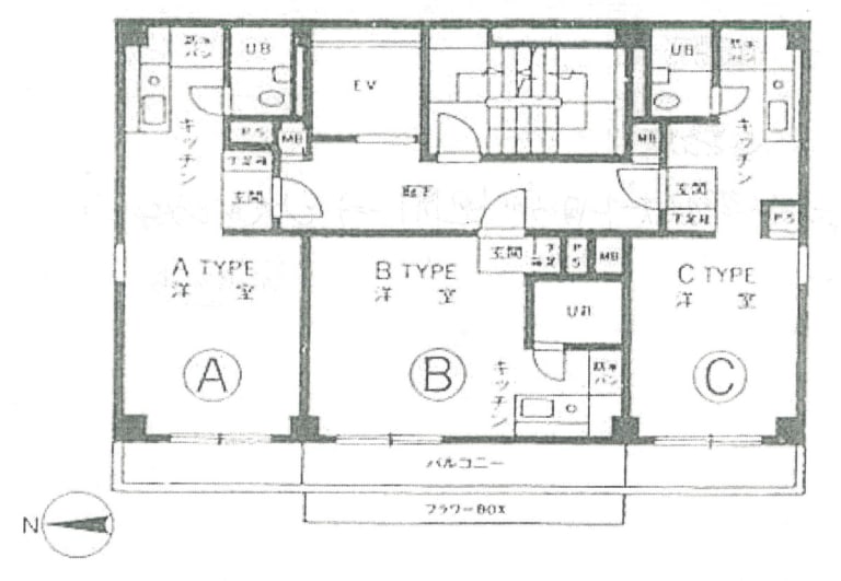
基準階図面
現在募集中の区画なし
| 階数 | 面積 | 賃料 + 共益費(税別) | 敷・保証 礼金敷金・保証金 / 礼金 | 検討 | ||
|---|---|---|---|---|---|---|
現在ビルアドにて登録されている貸室はございません。 | ||||||
物件情報
| 空室 | - |
|---|---|
| 物件名 | 青葉台XYSTビル |
| 住所 | 東京都目黒区青葉台3丁目8-12 |
| 構造 | RC / 地上5階 |
| 竣工 | 1990年6月 |
| 耐震基準 | 耐震基準クリア |
| 種別 | 事務所 |
設備詳細
| 空調 | 個別空調 |
|---|---|
| トイレ | - |
| 床仕様 | - |
| エレベータ | 1 基 |
| 駐車場設備 | 空有 |
| その他 | 新耐震 / エレベータ有 |
最寄り駅
| 最寄り駅 | 池尻大橋 徒歩6分 神泉 徒歩9分 駒場東大前 徒歩12分 |
|---|
【青葉台XYSTビルの紹介】
東京都目黒区の閑静な住宅街、青葉台3丁目に位置する「青葉台XYSTビル」は、SOHOや事務所としての利用に適したマンションタイプのビルです。この物件は、1990年の新耐震基準に従って施工され、2010年7月には外装及び共用部の大規模なリフォームが行われました。その結果、ビルは現代のビジネスニーズに合わせた洗練された外観と機能的な内部を持つように生まれ変わりました。
ビルの立地についても見逃せません。池尻大橋駅からほど近く、都心へのアクセスが容易でありながら、周囲は静かで落ち着いた環境が広がっています。このような立地は、クリエイティブな作業や集中を要する業務に従事するビジネスパーソンにとって理想的です。
ビル内の設備も充実しており、1基のエレベーターは日常の利便性を高め、ビル内駐車場は来客や従業員にとっての大きなメリットとなります。空き状況については事前にお問い合わせが必要ですが、このような設備が整っている点は、ビジネスの効率化を図る上で非常に重要です。
ビルのSOHO利用の相談も可能であり、フレキシブルに業務の形態を選ぶことができるため、スタートアップ企業や小規模事業者にとっても魅力的な選択肢となるでしょう。リフォーム済みの共用部は清潔感があり、訪れるクライアントに良い印象を与えることができます。
総じて、青葉台XYSTビルは、その耐震性、リフォームによる快適さ、利便性の高い立地、そしてビジネスの多様性に対応できる設備という点で、多くのビジネスオーナーやクリエイターにとって魅力的な選択肢となるでしょう。東京都内で事務所やSOHOのスペースをお探しの方には、ぜひとも検討いただきたい物件です。
アクセスマップ
ストリートビュー
階数 | 面積 | 賃料+共益費 | 詳細 |
|---|---|---|---|
| 2階 | 6.05坪 (20㎡) | 相談 | 詳細 |
| 3階 | 6.96坪 (23㎡) | 相談 | 詳細 |
| 4階 | 6.96坪 (23㎡) | 相談 | 詳細 |

