貸事務所・賃貸オフィス
鯨岡第3ビル
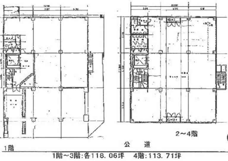
基準階図面
現在募集中の区画なし
| 階数 | 面積 | 賃料 + 共益費(税別) | 敷・保証 礼金敷金・保証金 / 礼金 | 検討 | ||
|---|---|---|---|---|---|---|
現在ビルアドにて登録されている貸室はございません。 | ||||||
物件情報
| 空室 | - |
|---|---|
| 物件名 | 鯨岡第3ビル |
| 住所 | 東京都江東区亀戸1丁目17-7 |
| 構造 | 地上4階 |
| 竣工 | 1971年1月 |
| 耐震基準 | - |
| 種別 | 事務所 |
設備詳細
| 空調 | 個別空調 |
|---|---|
| トイレ | - |
| 床仕様 | - |
| エレベータ | 1 基 |
| 駐車場設備 | 空有 |
| その他 | エレベータ有 |
最寄り駅
| 最寄り駅 | 亀戸 徒歩7分 亀戸 徒歩5分 西大島 徒歩9分 |
|---|
鯨岡第3ビルは、亀戸1丁目(江東区)に所在するオフィス賃貸です。錦糸町IC近くのアクセスが良好な立地で、
1階に駐車場と荷捌き所があるビルです。1971年の新耐震基準以前に竣工した物件です。駐車場がビル内にある物件ですので、空き状況についてはお問い合わせください。エレベーターは、1機です。
アクセスマップ
ストリートビュー
終了した募集区画
階数 | 面積 | 賃料+共益費 | 詳細 |
|---|---|---|---|
| 1階 | 467.91坪 (1546.8㎡) | 相談 | 詳細 |

