貸倉庫
海老名杉久保南倉庫ビル
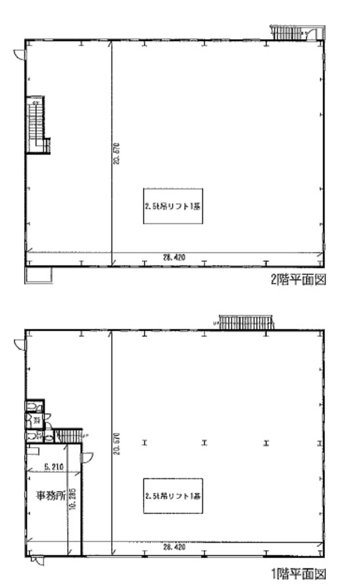
基準階図面
現在募集中の区画なし
| 階数 | 面積 | 賃料 + 共益費(税別) | 敷・保証 礼金敷金・保証金 / 礼金 | 検討 | ||
|---|---|---|---|---|---|---|
現在ビルアドにて登録されている貸室はございません。 | ||||||
物件情報
| 空室 | - |
|---|---|
| 物件名 | 海老名杉久保南倉庫ビル |
| 住所 | 神奈川県海老名市杉久保南3丁目19-11 |
| 構造 | 地上2階 |
| 竣工 | 1992年1月 |
| 耐震基準 | 耐震基準クリア |
| 種別 | 倉庫 |
設備詳細
| 空調 | - |
|---|---|
| トイレ | 男女別トイレ室内 / 男女別トイレ室外 |
| 床仕様 | - |
| エレベータ | - |
| 駐車場設備 | 空有 |
| その他 | 新耐震 |
最寄り駅
| 最寄り駅 | 海老名 徒歩56分 |
|---|
海老名杉久保南倉庫ビルは、杉久保南3丁目(海老名市)に所在するSOHO・事務所利用相談のマンションです。圏央道海老名ICより3kmの好立地で、男女別トイレや、電動シャッターが付いている物件です。1992年の新耐震基準施工後竣工した物件です。駐車場がビル内にある物件ですので、空き状況についてはお問い合わせください。
アクセスマップ
ストリートビュー
終了した募集区画
階数 | 面積 | 賃料+共益費 | 詳細 |
|---|---|---|---|
| 1階 | 364.98坪 (1206.57㎡) | 相談 | 詳細 |

