貸作業所ビル
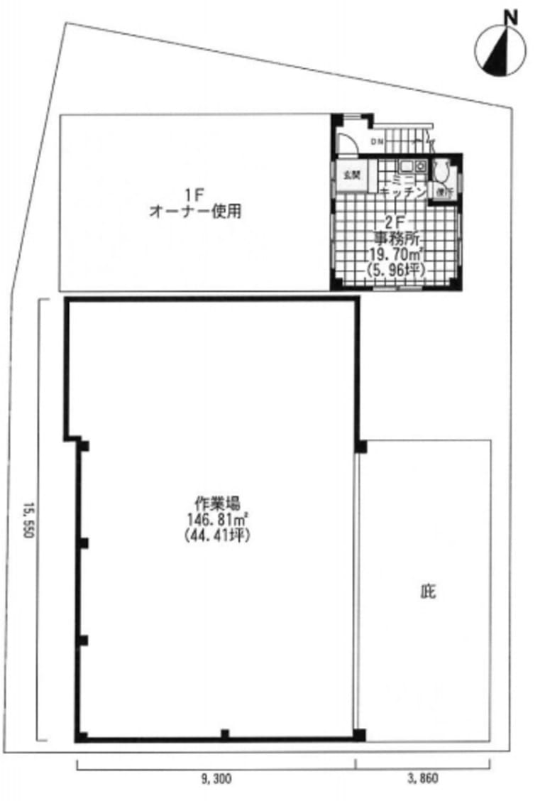
基準階図面
現在募集中の区画なし
| 階数 | 面積 | 賃料 + 共益費(税別) | 敷・保証 礼金敷金・保証金 / 礼金 | 検討 | ||
|---|---|---|---|---|---|---|
現在ビルアドにて登録されている貸室はございません。 | ||||||
物件情報
| 空室 | - |
|---|---|
| 物件名 | 貸作業所ビル |
| 住所 | 神奈川県横浜市 瀬谷区阿久和 東4丁目5-1 |
| 構造 | 鉄骨造 / 地上2階 |
| 耐震基準 | - |
| 種別 | その他 |
設備詳細
| 空調 | 個別空調 |
|---|---|
| トイレ | - |
| 床仕様 | - |
| エレベータ | - |
| 駐車場設備 | - |
| その他 | - |
最寄り駅
| 最寄り駅 | 三ツ境 徒歩29分 |
|---|
貸作業所ビルは、阿久和 東4丁目(横浜市 瀬谷区)に所在するオフィス賃貸です。
アクセスマップ
ストリートビュー
終了した募集区画
階数 | 面積 | 賃料+共益費 | 詳細 |
|---|---|---|---|
| 1階 | 50.37坪 (166.51㎡) | 相談 | 詳細 |

