白川ビル
外観写真1
現在募集中の区画(1区画)
※当サイトの表記はすべて税抜きとなり、消費税が別途加算されます。
| 階数 | 面積 | 賃料 + 共益費(税別) | 敷・保証 礼金敷金・保証金 / 礼金 | 検討 |
|---|---|---|---|---|
| B1階 | 38坪 (125.61㎡) | 650,000 円 (坪:17,104 円) | 10ヶ月/無 |
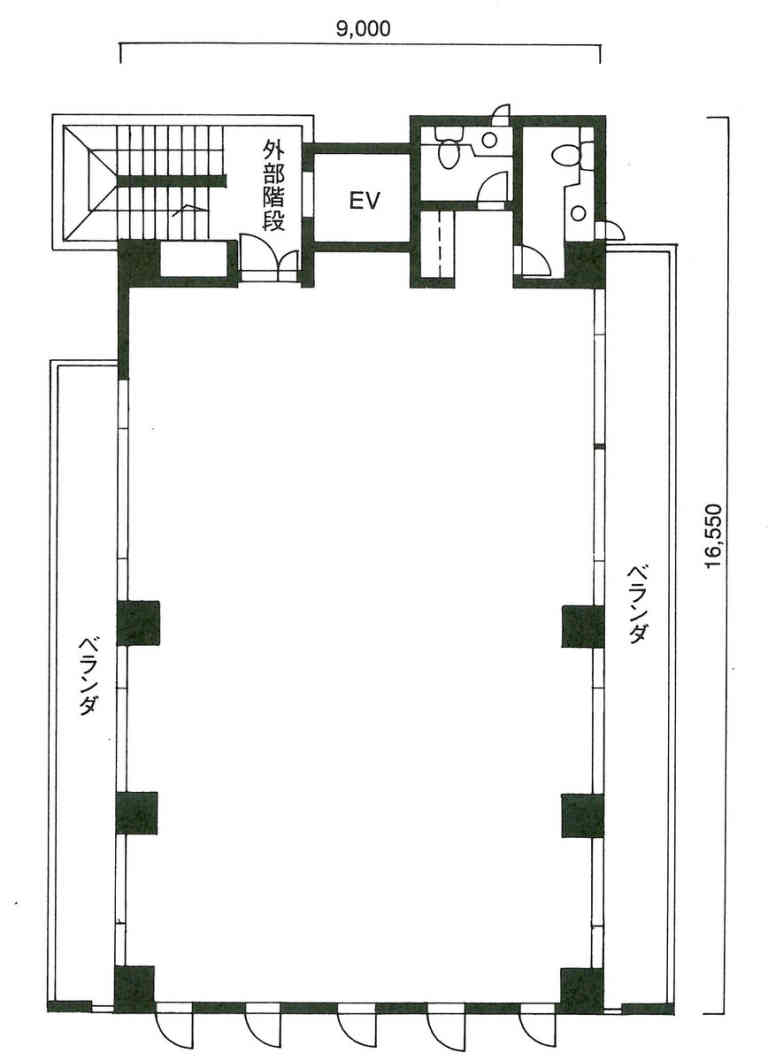
物件情報
| 空室 | あり |
|---|---|
| 物件名 | 白川ビル |
| 住所 | 東京都文京区湯島3丁目35-9 |
| 構造 | SRC / 地上7階・地下1階 |
| 竣工 | 1989年11月 |
| 耐震基準 | 耐震基準クリア |
| 種別 | 店舗 / 事務所 |
設備詳細
| 空調 | - |
|---|---|
| トイレ | - |
| 床仕様 | - |
| エレベータ | 1 基 |
| 駐車場設備 | - |
| その他 | 居抜き / 店舗可/飲食不可 / クリニック全般 / 新耐震 / 機械警備 / 24時間利用可 |
最寄り駅
| 最寄り駅 | 湯島 徒歩1分 上野御徒町 徒歩3分 上野広小路 徒歩3分 |
|---|
# 白川ビルの魅力: 文京区湯島に位置するモダンで利便性の高いオフィスビル
白川ビルは、東京都文京区湯島に位置する賃貸オフィスビルで、その外観はグレーとホワイトを基調とした石造りで、都市の中の洗練された美しさを象徴しています。春日通りに近接しているため、アクセスの利便性が非常に高く、湯島駅をはじめとする複数の鉄道駅からも短時間で到着できます。ビルの立地と機能性が、ビジネスの中心地として最適な環境を提供しています。
## 設備と利便性
ビル内には快適なエレベーターが1基設置されており、日々の業務での移動をスムーズにサポートします。エレベーターホールは清潔感溢れる白を基調にしており、訪れるクライアントにも好印象を与えることでしょう。また、1階には活気ある焼酎居酒屋が入居しており、ビジネスアフター5の憩いの場としても最適です。夜には外階段に設置されたフットランプがやさしく照らし出し、安全かつ心地良い帰宅を助けます。
## ビジネス環境としての魅力
白川ビルは、その位置が提供する圧倒的な利便性により、多様なビジネスチャンスを生み出します。ビルの向かいには歯科医院があり、従業員の健康管理も容易です。周辺には多数の飲食店があり、ビジネスランチや接待にも困りません。また、徒歩圏内にドン・キホーテ・上野店があるため、急な買い出しも問題なく対応可能です。
## 総合評価
白川ビルは、その優れた設備、アクセスの良さ、そしてビジネスに必要なすべての要素を兼ね備えたオフィスビルです。文京区という文教地区に位置しながら、商業的な活動にも最適なこのビルは、多くの企業にとって魅力的な選択肢となることでしょう。どのような業種にも対応可能な柔軟性と、日々の業務を支える充実した設備が、皆様のビジネスをさらに発展させる一助となることをお約束します。白川ビルで、新たなビジネスのステージを始めませんか?
アクセスマップ
ストリートビュー
階数 | 面積 | 賃料+共益費 | 詳細 |
|---|---|---|---|
| 1階 | 34.9坪 (115.37㎡) | 相談 | 詳細 |
| 2階 | 20坪 (66.11㎡) | 相談 | 詳細 |
| 3階 | 41.14坪 (136㎡) | 相談 | 詳細 |


































































































