貸事務所・賃貸オフィス貸店舗・テナント
タイガープラザ3ビル
外観写真1
現在募集中の区画(1区画)
※当サイトの表記はすべて税抜きとなり、消費税が別途加算されます。
| 階数 | 面積 | 賃料 + 共益費(税別) | 敷・保証 礼金敷金・保証金 / 礼金 | 検討 |
|---|---|---|---|---|
| B1階 | 18.15坪 (60㎡) | 326,700 円 (坪:18,000 円) | 12ヶ月/2ヶ月 |
物件情報
| 空室 | あり |
|---|---|
| 物件名 | タイガープラザ3ビル |
| 住所 | 東京都杉並区荻窪5丁目27-8 |
| 構造 | SRC / 地上9階 |
| 竣工 | 1970年9月 |
| 耐震基準 | - |
| 種別 | 事務所 / その他 / 店舗 |
設備詳細
| 空調 | セントラル空調 |
|---|---|
| トイレ | 男女別トイレ室内 / 男女別トイレ室外 |
| 床仕様 | - |
| エレベータ | 1 基 |
| 駐車場設備 | - |
| その他 | スケルトン / エレベータ有 |
最寄り駅
| 最寄り駅 | 荻窪 徒歩1分 阿佐ヶ谷 徒歩16分 南阿佐ヶ谷 徒歩17分 |
|---|
タイガープラザ3ビルは、荻窪5丁目(杉並区)に所在するオフィス賃貸です。エレベーターは、1機です。
アクセスマップ
ストリートビュー
終了した募集区画
階数 | 面積 | 賃料+共益費 | 詳細 |
|---|---|---|---|
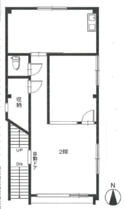
| 2階 | 81.97坪 (270.98㎡) | 相談 | 詳細 |
| 3階 | 39.5坪 (130.58㎡) | 相談 | 詳細 |
| 3階 | 34.63坪 (114.38㎡) | 相談 | 詳細 |
| 4階 | 32.02坪 (105.85㎡) | 相談 | 詳細 |
| 4階 | 52.17坪 (172.46㎡) | 相談 | 詳細 |
| 4階 | 16.43坪 (54.31㎡) | 相談 | 詳細 |
| 5階 | 32.02坪 (105.85㎡) | 相談 | 詳細 |
| 6階 | 80.7坪 (266.78㎡) | 相談 | 詳細 |
| 7階 | 51.01坪 (168.63㎡) | 相談 | 詳細 |
| 8階 | 80.7坪 (266.78㎡) | 相談 | 詳細 |
| 8階 | 52.18坪 (172.48㎡) | 相談 | 詳細 |
| 9階 | 39.72坪 (131.31㎡) | 相談 | 詳細 |




































































