赤坂室町ビル
外観写真1
現在募集中の区画なし
| 階数 | 面積 | 賃料 + 共益費(税別) | 敷・保証 礼金敷金・保証金 / 礼金 | 検討 | ||
|---|---|---|---|---|---|---|
現在ビルアドにて登録されている貸室はございません。 | ||||||
物件情報
| 空室 | - |
|---|---|
| 物件名 | 赤坂室町ビル |
| 住所 | 東京都港区赤坂2丁目5-4 |
| 構造 | SRC / 地上10階・地下1階 |
| 竣工 | 2003年2月 |
| 耐震基準 | 耐震基準クリア |
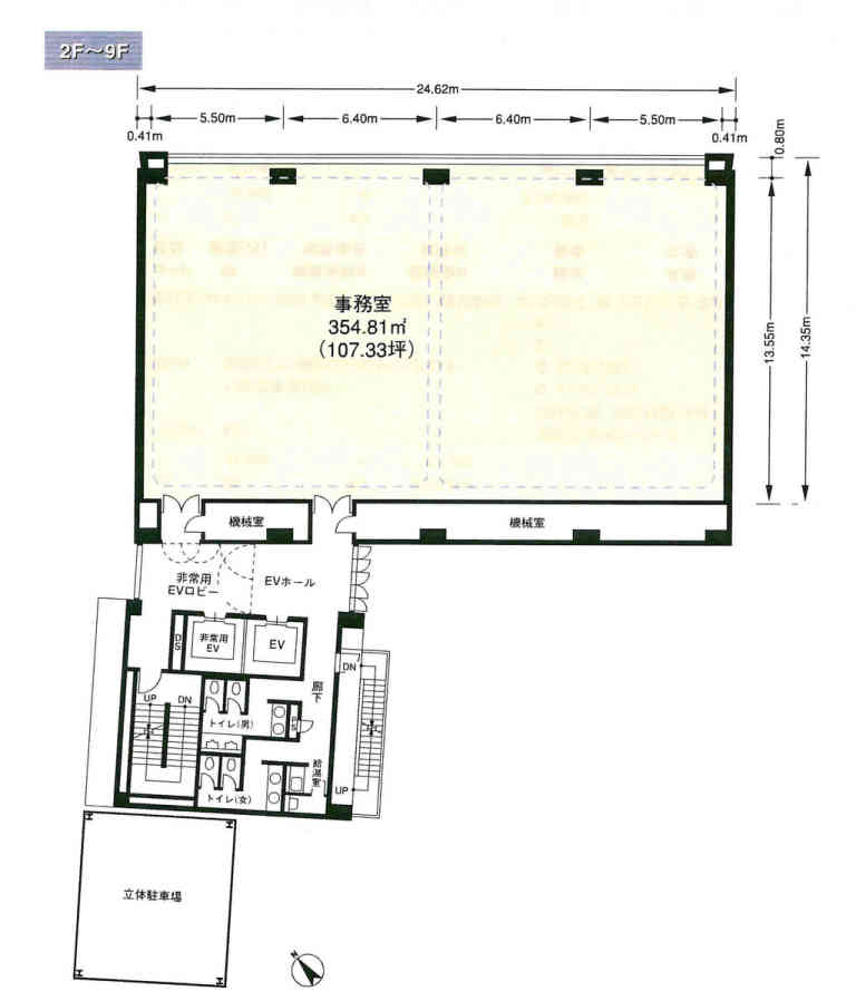
| 基準階坪数 | 107.33坪 |
| 種別 | 事務所 |
設備詳細
| 空調 | 個別空調 / セントラル空調 |
|---|---|
| トイレ | 男女別トイレ室内 / 男女別トイレ室外 |
| 床仕様 | OA有(フリーアクセスフロア) |
| エレベータ | 2 基 |
| 駐車場設備 | 空有 |
| その他 | 新耐震 |
最寄り駅
| 最寄り駅 | 溜池山王 徒歩3分 赤坂 徒歩4分 国会議事堂前 徒歩4分 |
|---|
赤坂室町ビルは、ビジネスの中心地、港区赤坂2丁目に位置する、アクセスと機能性を兼ね備えたモダンなオフィスビルです。この7階建ての建物は、2003年に竣工し、その耐久性と現代的なデザインで多くの企業から高い評価を受けています。溜池山王駅からわずか徒歩3分、赤坂駅からも徒歩4分という抜群のアクセス性を誇り、ビジネスの中心地への移動が非常に便利です。
ビルの外観はガラス張りで、清潔感と開放感を提供しています。内部では、最先端のOAフロアを採用しており、ケーブルやコンセントを床下に納めることができるため、オフィス空間をすっきりと整理整頓できます。また、建物は鉄骨鉄筋コンクリート造りで、耐震性にも優れており、企業の安心と信頼を支えます。
設備面では、2基のエレベーターが効率的な垂直移動を可能にし、セントラル空調によって各フロアや区画ごとに快適な温度管理が行えます。男女別トイレの設置も、働く人々の利便性を考慮した点です。
周辺環境も魅力の一つです。赤坂室町ビルの立地するエリアには、飲食店やコンビニ、三井住友銀行など、ビジネスに必要な施設が充実しています。また、外堀通りに面しているため、周辺へのアクセスも容易で、ビジネスの機会を広げることができます。
赤坂室町ビルは、その立地、設備、安全性を兼ね備え、あらゆるビジネスニーズに応える理想的なオフィススペースです。現代ビジネスにおける多様な要求を満たし、企業の成長と発展を支えるための最適な場所を提供します。赤坂室町ビルで、あなたのビジネスを次のステージへと導いてください。
アクセスマップ
ストリートビュー
階数 | 面積 | 賃料+共益費 | 詳細 |
|---|---|---|---|
| 1階 | 83.78坪 (276.96㎡) | 相談 | 詳細 |
| 3階 | 107.24坪 (354.54㎡) | 相談 | 詳細 |
| 4階 | 107.33坪 (354.8㎡) | 相談 | 詳細 |
| 5階 | 107.33坪 (354.8㎡) | 相談 | 詳細 |
| 6階 | 107.33坪 (354.81㎡) | 相談 | 詳細 |
| 7階 | 107.41坪 (355.08㎡) | 相談 | 詳細 |

