小林ビル
外観写真1
現在募集中の区画なし
| 階数 | 面積 | 賃料 + 共益費(税別) | 敷・保証 礼金敷金・保証金 / 礼金 | 検討 | ||
|---|---|---|---|---|---|---|
現在ビルアドにて登録されている貸室はございません。 | ||||||
物件情報
| 空室 | - |
|---|---|
| 物件名 | 小林ビル |
| 住所 | 東京都千代田区神田駿河台3丁目3-5 |
| 構造 | RC / 地上6階 |
| 竣工 | 1986年5月 |
| 耐震基準 | 耐震基準クリア |
| 種別 | 事務所 |
設備詳細
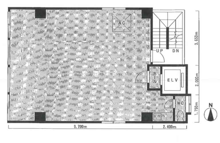
| 空調 | 個別空調 |
|---|---|
| トイレ | 男女共用トイレ室内 |
| 床仕様 | OA有(フリーアクセスフロア) |
| エレベータ | 1 基 |
| 駐車場設備 | - |
| その他 | クリニック全般 / 新耐震 / 光ファイバー / 機械警備 / 24時間利用可 |
最寄り駅
| 最寄り駅 | 新御茶ノ水 徒歩2分 小川町 徒歩3分 御茶ノ水 徒歩6分 |
|---|
小林ビルは、東京都千代田区神田駿河台3丁目にある、ビジネスの中心地に位置する理想的なオフィスビルです。1986年に竣工したこのビルは、鉄筋コンクリート造りで耐震性に優れており、企業の安心と安全を守る堅牢な基盤を提供します。
立地面では、新御茶ノ水駅からわずか徒歩3分、淡路町駅からは徒歩5分という駅近の利便性を誇ります。ビジネスにおける重要なアクセスの良さで、従業員だけでなく訪問客の利便性も高めます。周辺には飲食店やコンビニ、郵便局などの生活に必要な施設が充実しており、オフィスで働く皆様の日々の生活を支えます。
ビル内設備にも注目です。OAフロアは床下にケーブルやコンセントを納めることができ、オフィスのレイアウト変更も容易にできます。また、高速インターネット環境を求める現代のビジネスニーズに応えるため、光ファイバー対応のインフラも整っています。個別空調システムにより、各オフィスは快適な環境を維持。男女共用トイレやセキュリティ設備も完備されており、24時間利用可能なため、働く時間を自由に選べます。
小林ビルは、1基のエレベーターを備え、効率的な建物内の移動をサポートします。背後に広がる裏通りの静けさと、活気あるビジネスエリアの絶妙なバランスが魅力の一つです。周辺には多数のオフィスビルや店舗ビルが立ち並び、ビジネスの機会も豊富にあります。
ビジネスの要となる立地、安心と快適さを提供する設備、そして周辺環境の充実。小林ビルは、企業のニーズに応える多彩な魅力を備えたオフィスビルです。あなたのビジネスを次のレベルへと導く、最適な場所を提供します。企業の成長と発展を支える環境をお探しの小林ビルが最良の選択肢となることでしょう。
アクセスマップ
ストリートビュー
階数 | 面積 | 賃料+共益費 | 詳細 |
|---|---|---|---|
| 2階 | 23.2坪 (76.7㎡) | 相談 | 詳細 |
| 3階 | 23.2坪 (76.69㎡) | 相談 | 詳細 |
| 4階 | 19.21坪 (63.5㎡) | 相談 | 詳細 |
| 5階 | 15.44坪 (51.04㎡) | 相談 | 詳細 |
| 6階 | 17.67坪 (58.41㎡) | 相談 | 詳細 |

