貸事務所・賃貸オフィス
アミックハイムビル
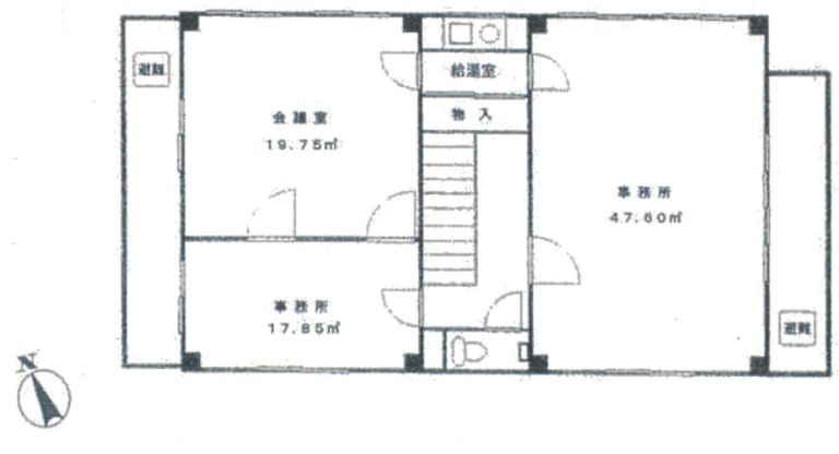
物件情報
| 空室 | あり |
|---|---|
| 物件名 | アミックハイムビル |
| 住所 | 東京都世田谷区三軒茶屋1丁目2-21 |
| 構造 | SRC / 地上3階 |
| 竣工 | 1994年5月 |
| 耐震基準 | 耐震基準クリア |
| 種別 | 事務所 |
設備詳細
| 空調 | - |
|---|---|
| トイレ | - |
| 床仕様 | - |
| エレベータ | - |
| 駐車場設備 | - |
| その他 | 新耐震 |
最寄り駅
| 最寄り駅 | 三軒茶屋 徒歩11分 三軒茶屋 徒歩13分 西太子堂 徒歩16分 |
|---|
アミックビルは、三軒茶屋1丁目(世田谷区)に所在するオフィス賃貸です。
アクセスマップ
ストリートビュー



































































