クオリティインビル
外観写真1
現在募集中の区画なし
| 階数 | 面積 | 賃料 + 共益費(税別) | 敷・保証 礼金敷金・保証金 / 礼金 | 検討 | ||
|---|---|---|---|---|---|---|
現在ビルアドにて登録されている貸室はございません。 | ||||||
物件情報
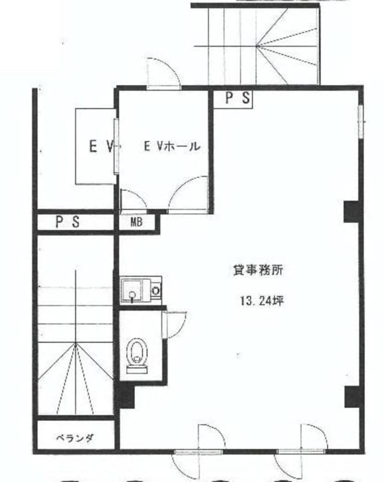
| 空室 | - |
|---|---|
| 物件名 | クオリティインビル |
| 住所 | 東京都豊島区駒込6丁目30-11 |
| 構造 | RC / 地上4階・地下1階 |
| 竣工 | 1993年11月 |
| 耐震基準 | 耐震基準クリア |
| 種別 | 事務所 |
設備詳細
| 空調 | - |
|---|---|
| トイレ | - |
| 床仕様 | - |
| エレベータ | - |
| 駐車場設備 | - |
| その他 | 新耐震 |
最寄り駅
| 最寄り駅 | 西ヶ原 徒歩7分 駒込 徒歩10分 上中里 徒歩10分 |
|---|
クオリティインビルは、1987年に竣工された豊島区駒込に位置する賃貸オフィスビルです。この4階建ての建物は、鉄筋コンクリート造りで、耐久性と安定性を兼ね備えています。基準階約30坪のオフィススペースは、中小企業やスタートアップに最適な広さを提供しており、各フロアには水回り設備も完備されています。
外観はタイル張りで、都市的で洗練された印象を与えます。ビル内には1基のエレベーターが設置され、日常の利便性が考慮されています。また、エントランスは明るく開放的で、訪れるクライアントに良い第一印象を与えることでしょう。建物内には複数の柱がありますので、オフィスのレイアウトを計画する際には、これを考慮する必要があります。
立地に関して、クオリティインビルは西ケ原駅から徒歩圏内に位置しており、公共交通のアクセスが非常に便利です。周囲は主に住宅街で、落ち着いた環境の中でビジネスを行うことができます。徒歩3分の距離にコンビニがあり、急な買い物にも対応可能です。また、徒歩2分で郵便局にも行けるため、ビジネスでの郵送物の取り扱いも容易です。
このビルの周辺には染井銀座商店街もあり、ランチタイムや仕事帰りの買い物に便利なロケーションです。少し歩けば、食事や日用品の購入に困ることはありません。
ビジネスの利点として、クオリティインビルは中心地から少し離れた静かなエリアに位置しているため、集中して仕事をする環境を求める企業にとって最適な選択肢と言えます。また、比較的手頃な賃料で都心に近い立地を享受できるため、コストパフォーマンスも魅力の一つです。
このように、クオリティインビルは機能性とアクセスの良さを兼ね備えた事務所ビルとして、多岐にわたるビジネスニーズに対応するポテンシャルを持っています。オフィスを構えることで、企業は効率的なビジネス運営を展開する基盤を築くことができるでしょう。
アクセスマップ
ストリートビュー
階数 | 面積 | 賃料+共益費 | 詳細 |
|---|---|---|---|
| 2階 | 13.25坪 (43.8㎡) | 相談 | 詳細 |

