山越ビル
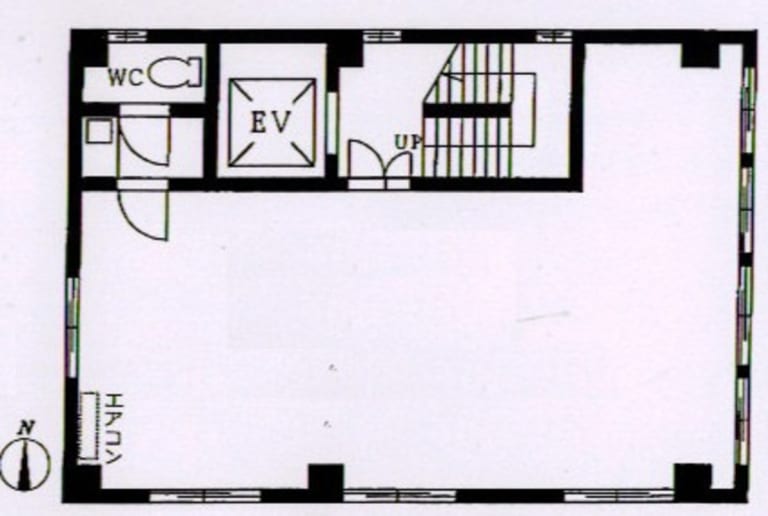
基準階図面
現在募集中の区画なし
| 階数 | 面積 | 賃料 + 共益費(税別) | 敷・保証 礼金敷金・保証金 / 礼金 | 検討 | ||
|---|---|---|---|---|---|---|
現在ビルアドにて登録されている貸室はございません。 | ||||||
物件情報
| 空室 | - |
|---|---|
| 物件名 | 山越ビル |
| 住所 | 東京都台東区秋葉原6-8 |
| 構造 | RC / 地上9階 |
| 竣工 | 1971年2月 |
| 耐震基準 | - |
| 種別 | 事務所 |
設備詳細
| 空調 | 個別空調 |
|---|---|
| トイレ | - |
| 床仕様 | - |
| エレベータ | 1 基 |
| 駐車場設備 | - |
| その他 | エレベータ有 |
最寄り駅
| 最寄り駅 | 秋葉原 徒歩3分 御徒町 徒歩7分 末広町 徒歩5分 |
|---|
秋葉原、東京の心臓部に立地している山越ビルは、現代のビジネスマンにとって理想的なオフィススペースを提供します。このビルは昭和通りに面しており、その地理的な位置は絶対に見過ごせないものです。交通至便という言葉がこの場所にふさわしい理由を、ここで掘り下げていきましょう。
まず、山越ビルの立地条件から始めましょう。秋葉原は、電気街としての名声はもちろん、最近ではビジネスとイノベーションの中心地としても知られています。この地域にオフィスを構えることは、最新の技術にアクセスしやすいという点だけでなく、様々な業種の企業との連携機会を持つことができるという意味でも、大きなメリットがあります。加えて、山越ビルが昭和通りに面していることで、ビルへのアクセスが非常に容易になります。秋葉原駅からは徒歩で簡単に到達でき、都心やその他のビジネスエリアへの移動もスムーズです。
次に、山越ビルの設備に焦点を当てます。このビルは、現代のオフィスに求められるすべての機能を備えています。特筆すべきは、ビル内に設置された1機のエレベーターです。エレベーターは、オフィスビルの動脈とも言える存在であり、このビルでは迅速かつ効率的な移動を保証しています。また、このビルは、安全性とセキュリティにも最大限の配慮を払っています。入居企業とその従業員の安全を守るために、最新のセキュリティシステムが導入されているのです。
山越ビルの最大の魅力は、その立地と設備だけに留まりません。このビルは、ビジネスの成長と発展を支援するための環境を提供することに注力しています。オフィススペースは、機能的でありながら快適性も兼ね備えており、創造性と生産性の向上を促します。また、秋葉原という地の利を生かし、ビジネスネットワーキングの機会も豊富にあります。入居することで、様々な分野の専門家やビジネスリーダーとのつながりを深めることができるのです。
総じて、山越ビルは、秋葉原という首都圏の中心に位置する、交通至便なオフィスビルです。その立地、設備、そしてビジネスにおける利点を考えると、あらゆる業種の企業にとって魅力的な選択肢であることは間違いありません。あなたのビジネスを次のレベルへと導くための理想的な場所、それが山越ビルです。
アクセスマップ
ストリートビュー
階数 | 面積 | 賃料+共益費 | 詳細 |
|---|---|---|---|
| 3階 | 20坪 (66.12㎡) | 相談 | 詳細 |
| 4階 | 20坪 (66.11㎡) | 相談 | 詳細 |
| 5階 | 20坪 (66.11㎡) | 相談 | 詳細 |
| 6階 | 20坪 (66.12㎡) | 相談 | 詳細 |
| 7階 | 20坪 (66.12㎡) | 相談 | 詳細 |

