TAKビル
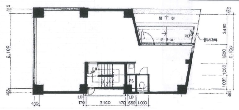
基準階図面
現在募集中の区画(1区画)
※当サイトの表記はすべて税抜きとなり、消費税が別途加算されます。
| 階数 | 面積 | 賃料 + 共益費(税別) | 敷・保証 礼金敷金・保証金 / 礼金 | 検討 |
|---|---|---|---|---|
| 4階 | 18.45坪 (61㎡) | 200,000 円 (坪:10,840 円) | 3ヶ月/1ヶ月 |
物件情報
| 空室 | あり |
|---|---|
| 物件名 | TAKビル |
| 住所 | 東京都品川区南大井6丁目13-14 |
| 構造 | 鉄骨造 / 地上5階・地下1階 |
| 竣工 | 1989年5月 |
| 耐震基準 | 耐震基準クリア |
| 種別 | 事務所 / 店舗 |
設備詳細
| 空調 | 個別空調 |
|---|---|
| トイレ | - |
| 床仕様 | - |
| エレベータ | - |
| 駐車場設備 | - |
| その他 | クリニック全般 / 新耐震 / 24時間利用可 |
最寄り駅
| 最寄り駅 | 大森 徒歩4分 大森 徒歩5分 大森海岸 徒歩8分 |
|---|
品川区南大井に位置するTAKビルは、1989年竣工の地上5階建てのオフィス賃貸物件であり、現代のビジネスニーズに合わせた設備と快適なワークスペースを提供しています。本物件は、約20坪のワンフロア面積を有し、各貸室内にはトイレと給湯スペースが設置されており、企業の日常運営に必要な基本的な設備が整っています。フロアごとに間取りや設備が異なる場合がありますので、実際の内見時に詳細を確認することをお勧めします。
TAKビルは、大森駅から徒歩圏内にあり、アクセスの良さはビジネスの機動性を高める重要な要素です。大井水神公園沿いの立地は、オフィス環境に潤いと落ち着きを与え、働く従業員のウェルビーイングにも寄与します。徒歩2分の距離にコンビニがあり、日々の小さな用事にも便利です。
エレベーターが設置されていないため、5階建ての建築物の利用には階段の使用が必須となります。この点は、特に健康意識の高い企業にとっては、日常の運動機会として捉えられるかもしれません。併せて、階段の使用は、ビル内のコミュニケーション機会を増やす効果も期待できます。
TAKビルの立地は、品川区南大井という地域の中心部にあり、周辺は住宅と商業施設が混在する活気あるエリアです。徒歩4分のセブンイレブンや品川水神郵便局まで徒歩2分という近さは、日常の業務運営において非常に便利です。
まとめると、TAKビルは、その立地の良さ、必要な基本設備の整ったオフィス空間、そして周辺環境の利便性を兼ね備えた賃貸事務所物件です。ビジネスの拠点として、また従業員が快適に働ける環境として、多くの企業にとって魅力的な選択肢となるでしょう。
アクセスマップ
ストリートビュー
階数 | 面積 | 賃料+共益費 | 詳細 |
|---|---|---|---|
| B1階 | 29.84坪 (98.66㎡) | 相談 | 詳細 |
| 1階 | 18坪 (59.5㎡) | 相談 | 詳細 |
| 2階 | 23.52坪 (77.78㎡) | 相談 | 詳細 |
| 3階 | 22.99坪 (76㎡) | 相談 | 詳細 |
| 5階 | 12.4坪 (41㎡) | 相談 | 詳細 |


















































































