貸事務所・賃貸オフィス
貸事務所ビル
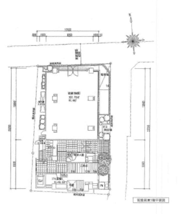
基準階図面
現在募集中の区画なし
| 階数 | 面積 | 賃料 + 共益費(税別) | 敷・保証 礼金敷金・保証金 / 礼金 | 検討 | ||
|---|---|---|---|---|---|---|
現在ビルアドにて登録されている貸室はございません。 | ||||||
物件情報
| 空室 | - |
|---|---|
| 物件名 | 貸事務所ビル |
| 住所 | 東京都世田谷区三軒茶屋1丁目40-10 |
| 竣工 | 2007年6月 |
| 耐震基準 | 耐震基準クリア |
| 種別 | 事務所 |
設備詳細
| 空調 | - |
|---|---|
| トイレ | - |
| 床仕様 | - |
| エレベータ | - |
| 駐車場設備 | - |
| その他 | 新耐震 |
最寄り駅
| 最寄り駅 | 三軒茶屋 徒歩1分 三軒茶屋 徒歩4分 西太子堂 徒歩7分 |
|---|
貸事務所ビルは、三軒茶屋1丁目(世田谷区)に所在するオフィス賃貸です。
アクセスマップ
ストリートビュー
終了した募集区画
階数 | 面積 | 賃料+共益費 | 詳細 |
|---|---|---|---|
| 1階 | 41.66坪 (137.72㎡) | 相談 | 詳細 |

