岩田光建ビル
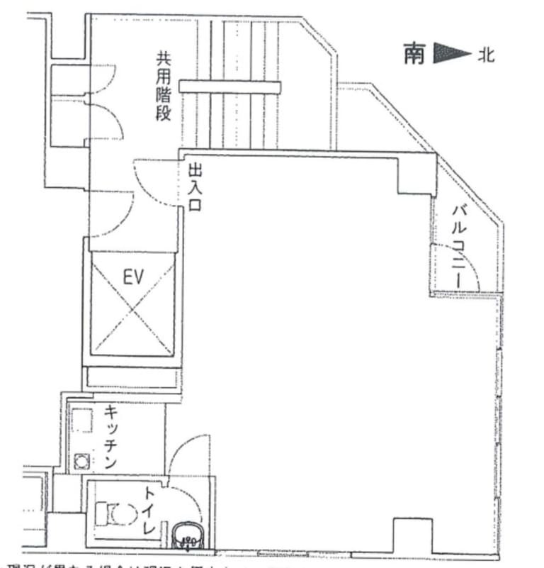
基準階図面
現在募集中の区画なし
| 階数 | 面積 | 賃料 + 共益費(税別) | 敷・保証 礼金敷金・保証金 / 礼金 | 検討 | ||
|---|---|---|---|---|---|---|
現在ビルアドにて登録されている貸室はございません。 | ||||||
物件情報
| 空室 | - |
|---|---|
| 物件名 | 岩田光建ビル |
| 住所 | 東京都豊島区南池袋2丁目35-7 |
| 構造 | SRC / 地上8階 |
| 竣工 | 1979年3月 |
| 耐震基準 | - |
| 基準階坪数 | 30坪 |
| 種別 | 事務所 / 店舗 |
設備詳細
| 空調 | 個別空調 |
|---|---|
| トイレ | - |
| 床仕様 | OA有(フリーアクセスフロア) |
| エレベータ | 1 基 |
| 駐車場設備 | - |
| その他 | 店舗可/飲食不可 |
最寄り駅
| 最寄り駅 | 東池袋 徒歩3分 都電雑司ヶ谷 徒歩4分 東池袋四丁目 徒歩6分 |
|---|
岩田光建ビルは、東京都豊島区南池袋2丁目に位置する高品質なオフィスビルです。このビルは、その優れた立地と充実した設備により、多くのビジネスに最適な環境を提供します。
まず、立地条件ですが、岩田光建ビルは都電荒川線の都電雑司ヶ谷駅から徒歩3分、山手線の池袋駅から徒歩8分という非常に便利な交通アクセスを誇ります。これにより、従業員や来訪者にとって通勤や移動が非常に効率的であり、ビジネス活動の円滑な運営をサポートします。さらに、池袋という都心部に位置するため、周辺には多様な飲食店や商業施設が立ち並び、ビジネスランチやアフターワークのリフレッシュにも最適です。
次に、ビルの設備についてですが、岩田光建ビルには1機のエレベーターが設置されています。このエレベーターは、ビル内の移動をスムーズにし、各階へのアクセスを容易にします。また、ビル全体がオフィス向けに設計されており、効率的なレイアウトと快適な作業環境が提供されています。オフィススペースは広々としており、自然光が差し込む明るい空間を実現しています。これにより、従業員の生産性向上や働きやすさを追求しています。
さらに、岩田光建ビルは、セキュリティ面でも優れており、ビル全体にわたる監視カメラの設置や管理人の常駐などにより、安全で安心な環境を提供します。これにより、入居テナントは安心してビジネスに専念することができます。
ビルの周辺環境も魅力的です。南池袋エリアは、豊島区の中でも特に人気の高いエリアであり、多くの企業が集まるビジネス街としての一面を持っています。また、文化施設や公園も多く、休憩時間や仕事終わりのリフレッシュに適した環境が整っています。
総じて、岩田光建ビルは、その優れた立地条件と充実した設備により、ビジネスにおける多くの利点を提供します。交通アクセスの良さ、効率的なオフィススペース、安全性の高い環境など、さまざまな要素が融合し、入居企業の成長と成功を支援します。ビジネスの拠点として、岩田光建ビルをご検討いただければ幸いです。
アクセスマップ
ストリートビュー
階数 | 面積 | 賃料+共益費 | 詳細 |
|---|---|---|---|
| 1階 | 16.97坪 (56.1㎡) | 相談 | 詳細 |
| 2階 | 15.1坪 (49.95㎡) | 相談 | 詳細 |
| 3階 | 12.14坪 (40.14㎡) | 相談 | 詳細 |
| 3階 | 15.43坪 (51㎡) | 相談 | 詳細 |
| 5階 | 15坪 (49.59㎡) | 相談 | 詳細 |
| 5階 | 15坪 (49.58㎡) | 相談 | 詳細 |
| 6階 | 14.01坪 (46.3㎡) | 相談 | 詳細 |
| 7階 | 12.8坪 (42.33㎡) | 相談 | 詳細 |

