貸倉庫
貸倉庫ビル
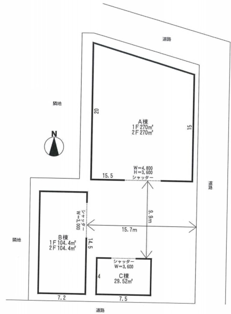
基準階図面
現在募集中の区画なし
| 階数 | 面積 | 賃料 + 共益費(税別) | 敷・保証 礼金敷金・保証金 / 礼金 | 検討 | ||
|---|---|---|---|---|---|---|
現在ビルアドにて登録されている貸室はございません。 | ||||||
物件情報
| 空室 | - |
|---|---|
| 物件名 | 貸倉庫ビル |
| 住所 | 神奈川県相模原市 緑区三井400- |
| 構造 | 鉄骨造 / 地上2階 |
| 耐震基準 | - |
| 種別 | 倉庫 |
設備詳細
| 空調 | - |
|---|---|
| トイレ | - |
| 床仕様 | - |
| エレベータ | - |
| 駐車場設備 | - |
| その他 | - |
最寄り駅
| 最寄り駅 | 相原 徒歩99分 |
|---|
貸倉庫ビルは、三井(相模原市 緑区)に所在するオフィス賃貸です。
アクセスマップ
ストリートビュー
終了した募集区画
階数 | 面積 | 賃料+共益費 | 詳細 |
|---|---|---|---|
| 1階 | 235.44坪 (778.32㎡) | 相談 | 詳細 |

