早渕ビル
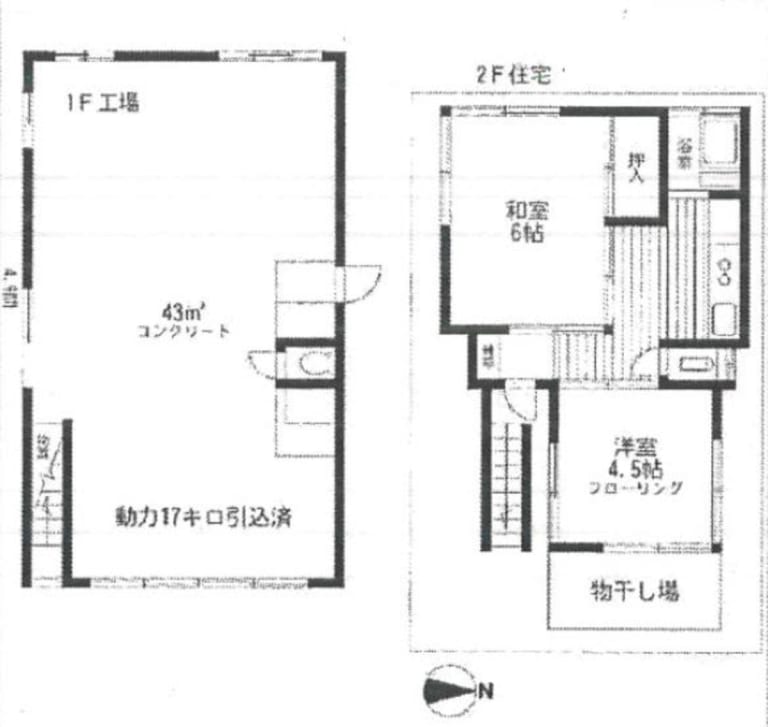
基準階図面
現在募集中の区画なし
| 階数 | 面積 | 賃料 + 共益費(税別) | 敷・保証 礼金敷金・保証金 / 礼金 | 検討 | ||
|---|---|---|---|---|---|---|
現在ビルアドにて登録されている貸室はございません。 | ||||||
物件情報
| 空室 | - |
|---|---|
| 物件名 | 早渕ビル |
| 住所 | 神奈川県横浜市 都筑区勝田町1317-1 |
| 構造 | 地上2階 |
| 竣工 | 1970年10月 |
| 耐震基準 | - |
| 種別 | その他 |
設備詳細
| 空調 | - |
|---|---|
| トイレ | - |
| 床仕様 | - |
| エレベータ | - |
| 駐車場設備 | - |
| その他 | - |
最寄り駅
| 最寄り駅 | センター北 徒歩14分 センター南 徒歩16分 センター北 徒歩15分 |
|---|
早渕ビルは、勝田町(横浜市 都筑区)に所在するオフィス賃貸です。日当たりが良好な貸室が魅力のビルです。
アクセスマップ
ストリートビュー
終了した募集区画
階数 | 面積 | 賃料+共益費 | 詳細 |
|---|---|---|---|
| 1階 | 22.9坪 (75.69㎡) | 相談 | 詳細 |

