貸事務所・賃貸オフィス
第1サニービル
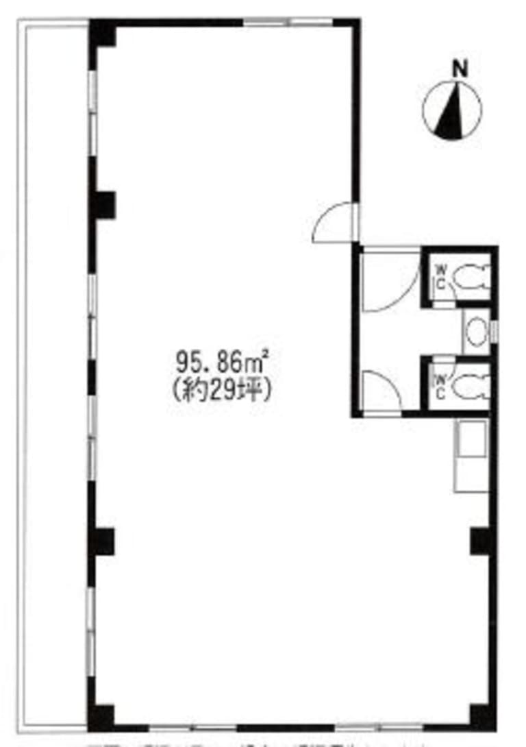
基準階図面
現在募集中の区画なし
| 階数 | 面積 | 賃料 + 共益費(税別) | 敷・保証 礼金敷金・保証金 / 礼金 | 検討 | ||
|---|---|---|---|---|---|---|
現在ビルアドにて登録されている貸室はございません。 | ||||||
物件情報
| 空室 | - |
|---|---|
| 物件名 | 第1サニービル |
| 住所 | 神奈川県鎌倉市小袋谷2丁目14-34 |
| 構造 | 地上3階 |
| 竣工 | 1993年4月 |
| 耐震基準 | 耐震基準クリア |
| 種別 | 事務所 |
設備詳細
| 空調 | 個別空調 |
|---|---|
| トイレ | - |
| 床仕様 | - |
| エレベータ | - |
| 駐車場設備 | 空有 |
| その他 | 新耐震 |
最寄り駅
| 最寄り駅 | 富士見町 徒歩8分 大船 徒歩15分 大船 徒歩12分 |
|---|
第1サニービルは、小袋谷2丁目(鎌倉市)に所在するオフィス賃貸です。1993年の新耐震基準施工後竣工した物件です。駐車場がビル内にある物件ですので、空き状況についてはお問い合わせください。
アクセスマップ
ストリートビュー
終了した募集区画
階数 | 面積 | 賃料+共益費 | 詳細 |
|---|---|---|---|
| 3階 | 29坪 (95.86㎡) | 相談 | 詳細 |

