栄進開発ビル
外観写真1
現在募集中の区画なし
| 階数 | 面積 | 賃料 + 共益費(税別) | 敷・保証 礼金敷金・保証金 / 礼金 | 検討 | ||
|---|---|---|---|---|---|---|
現在ビルアドにて登録されている貸室はございません。 | ||||||
物件情報
| 空室 | - |
|---|---|
| 物件名 | 栄進開発ビル |
| 住所 | 東京都港区新橋5丁目34-3 |
| 構造 | 鉄骨造 / 地上7階 |
| 竣工 | 1988年12月 |
| 耐震基準 | 耐震基準クリア |
| 種別 | 事務所 / その他 |
設備詳細
| 空調 | 個別空調 |
|---|---|
| トイレ | 男女別トイレ室内 / 男女別トイレ室外 |
| 床仕様 | OA有(フリーアクセスフロア) |
| エレベータ | 2 基 |
| 駐車場設備 | - |
| その他 | 居抜き / クリニック全般 / 新耐震 / 光ファイバー / 機械警備 / 24時間利用可 |
最寄り駅
| 最寄り駅 | 新橋 徒歩6分 御成門 徒歩3分 新橋 徒歩7分 |
|---|
栄進開発ビルは、あなたのビジネスの新たな拠点として最適なオフィスビルです。この賃貸オフィスビルは、東京都港区新橋5-34-3に位置し、都営三田線の御成門駅から徒歩わずか5分、JR各線やゆりかもめ線の新橋駅からも徒歩10分以内という、アクセス抜群の立地を誇ります。ビジネスシーンにおいて、このように複数の交通網が手軽に利用できることは、日々の通勤はもちろん、クライアントやパートナー企業との会合にも大きな利点となります。
1988年に竣工し、新耐震基準にも適合するこのビルは、鉄骨造の地上7階建てで、一階当たりの基準階面積は約92坪です。重厚感ある外観と、赤レンガ通りに面した立地は、あなたのビジネスを一層引き立てます。また、エントランスは平日および土曜日の7:00から20:00まで開放され、ビル内には2基のエレベーター、機械警備、そして光ファイバーが完備されています。24時間使用可能で、使用時間の制限がないため、働き方の多様性にも対応しています。
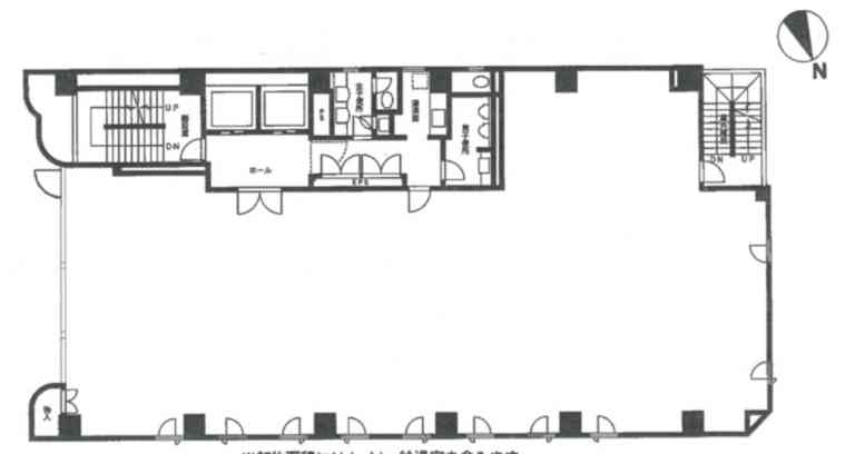
貸室内はワンフロア・ワンテナント制で、個別空調とOAフロアが完備されており、快適なオフィス環境を提供します。男女別の室内トイレや、天高2,800mmの広々とした空間も、日々のビジネス活動をサポートします。
周辺環境も非常に充実しており、1階にはコンビニエンスストアが入居。また、近隣には銀行、郵便局、飲食店などがあり、ビジネスに必要なあらゆるサポートが手の届くところにあります。さらに、緑豊かな公園や歴史的な神社も近く、仕事の合間のリフレッシュにも最適です。
栄進開発ビルは、ビジネスの発展に欠かせないアクセスの良さ、機能的で快適なオフィス環境、そして豊富な周辺設備を兼ね備えた賃貸オフィスビルです。ここにオフィスを構えることで、あなたのビジネスはさらに飛躍することでしょう。今すぐお問い合わせください、あなたのビジネスの未来に、最適なスペースがここにあります。
アクセスマップ
ストリートビュー
階数 | 面積 | 賃料+共益費 | 詳細 |
|---|---|---|---|
| 1階 | 50.83坪 (168.03㎡) | 相談 | 詳細 |
| 2階 | 87.64坪 (289.72㎡) | 相談 | 詳細 |
| 3階 | 91.74坪 (303.26㎡) | 相談 | 詳細 |
| 4階 | 91.74坪 (303.272㎡) | 相談 | 詳細 |
| 5階 | 91.74坪 (303.27㎡) | 相談 | 詳細 |
| 6階 | 90.6坪 (299.5㎡) | 相談 | 詳細 |
| 7階 | 91.79坪 (303.45㎡) | 相談 | 詳細 |
| 7階 | 87.64坪 (289.71㎡) | 相談 | 詳細 |

