橋場トドロキビル
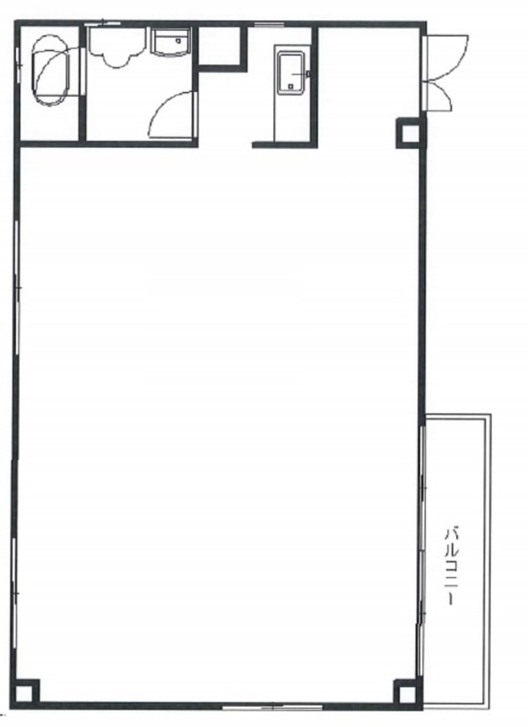
基準階図面
現在募集中の区画なし
| 階数 | 面積 | 賃料 + 共益費(税別) | 敷・保証 礼金敷金・保証金 / 礼金 | 検討 | ||
|---|---|---|---|---|---|---|
現在ビルアドにて登録されている貸室はございません。 | ||||||
物件情報
| 空室 | - |
|---|---|
| 物件名 | 橋場トドロキビル |
| 住所 | 東京都台東区橋場2丁目1-7 |
| 構造 | RC / 地上7階 |
| 竣工 | 1971年12月 |
| 耐震基準 | - |
| 種別 | 倉庫 / 事務所 |
設備詳細
| 空調 | - |
|---|---|
| トイレ | - |
| 床仕様 | - |
| エレベータ | - |
| 駐車場設備 | 空有 |
| その他 | - |
最寄り駅
| 最寄り駅 | 東向島 徒歩13分 浅草 徒歩24分 曳舟 徒歩14分 |
|---|
橋場トドロキビルは、台東区橋場2丁目に位置する、SOHOや事務所の利用に適したマンションです。この物件は、1971年の新耐震基準が導入される以前に竣工されたもので、歴史ある建築の風格を感じさせます。本ビルは、事業主や起業家にとって魅力的な選択肢となるでしょう。
立地においては、台東区は東京都内でも数多くの企業が集まる活動的なエリアです。その中心に位置する橋場2丁目は、ビジネスの機会が豊富なだけでなく、交通のアクセスも良好です。この地域は、都心へのアクセスが容易で、周辺には飲食店や商業施設が充実しており、ビジネスパーソンにとって大変便利な環境です。
当ビルの最大の特徴の一つは、内部に設けられた駐車場です。都心部では駐車スペースが限られているため、この設備は特に車を利用するビジネスオーナーや従業員にとって大きなメリットとなります。空き状況については、直接お問い合わせいただく必要がありますが、このような設備は都心で事業を展開する上で非常に価値があると言えます。
さらに、SOHOや事務所の利用を想定しているため、ビル内の各オフィススペースは、機能的で使いやすい設計となっております。起業家や中小企業の経営者が、効率的かつ快適に仕事を進められるよう、快適な労働環境の提供を心がけています。
橋場トドロキビルは、その立地、設備、そして歴史ある建築が醸し出す雰囲気により、ビジネスの展開において独自の価値を提供します。特に、新耐震基準以前に建てられたという点は、耐久性と安全性に関しては現代の基準に合わせた改修が必要かもしれませんが、その歴史性と風格は、あらゆるビジネスシーンにおいて独特の魅力を放ちます。
結論として、橋場トドロキビルは、事業を展開する上での多様なニーズに応えることができる物件です。立地の良さ、必要な設備の充実、そして歴史ある建物としての風格は、ビジネスオーナーにとって大きな魅力となるでしょう。ご関心のある方は、是非一度、現地を訪れ、このビルが提供する独特の価値をご自身で体感していただければと思います。
アクセスマップ
ストリートビュー
階数 | 面積 | 賃料+共益費 | 詳細 |
|---|---|---|---|
| 1階 | 10.47坪 (34.61㎡) | 相談 | 詳細 |
| 2階 | 18坪 (59.5㎡) | 相談 | 詳細 |
| 3階 | 18坪 (59.5㎡) | 相談 | 詳細 |
| 5階 | 18坪 (59.5㎡) | 相談 | 詳細 |
| 6階 | 18坪 (59.5㎡) | 相談 | 詳細 |

