貸事務所・賃貸オフィス
ダイアパレス錦糸町第2ビル
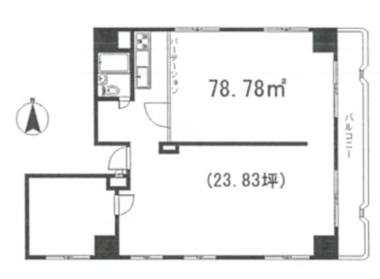
基準階図面
現在募集中の区画なし
| 階数 | 面積 | 賃料 + 共益費(税別) | 敷・保証 礼金敷金・保証金 / 礼金 | 検討 | ||
|---|---|---|---|---|---|---|
現在ビルアドにて登録されている貸室はございません。 | ||||||
物件情報
| 空室 | - |
|---|---|
| 物件名 | ダイアパレス錦糸町第2ビル |
| 住所 | 東京都墨田区亀沢3丁目3-9 |
| 構造 | SRC / 地上11階 |
| 竣工 | 1981年6月 |
| 耐震基準 | - |
| 種別 | 事務所 |
設備詳細
| 空調 | 個別空調 |
|---|---|
| トイレ | - |
| 床仕様 | - |
| エレベータ | 1 基 |
| 駐車場設備 | - |
| その他 | エレベータ有 |
最寄り駅
| 最寄り駅 | 両国 徒歩9分 錦糸町 徒歩10分 錦糸町 徒歩12分 |
|---|
ダイアパレス錦糸町第2ビルは、亀沢3丁目(墨田区)に所在するSOHO・事務所利用相談のマンションです。三ツ目通り面です。エレベーターは、1機です。
アクセスマップ
ストリートビュー
終了した募集区画
階数 | 面積 | 賃料+共益費 | 詳細 |
|---|---|---|---|
| 2階 | 23.83坪 (78.78㎡) | 相談 | 詳細 |

