貸事務所・賃貸オフィス
クリエート湘南第3ビル
外観写真1
現在募集中の区画(1区画)
※当サイトの表記はすべて税抜きとなり、消費税が別途加算されます。
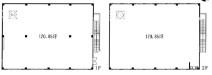
| 階数 | 面積 | 賃料 + 共益費(税別) | 敷・保証 礼金敷金・保証金 / 礼金 | 検討 |
|---|---|---|---|---|
| 1階 | 211.75坪 (700㎡) | 2,541,000 円 (坪:12,000 円) | 10ヶ月/1ヶ月 |
物件情報
| 空室 | あり |
|---|---|
| 物件名 | クリエート湘南第3ビル |
| 住所 | 神奈川県藤沢市本鵠沼3丁目12-31 |
| 構造 | 鉄骨造 / 地上2階 |
| 竣工 | 1994年3月 |
| 耐震基準 | 耐震基準クリア |
| 種別 | 事務所 |
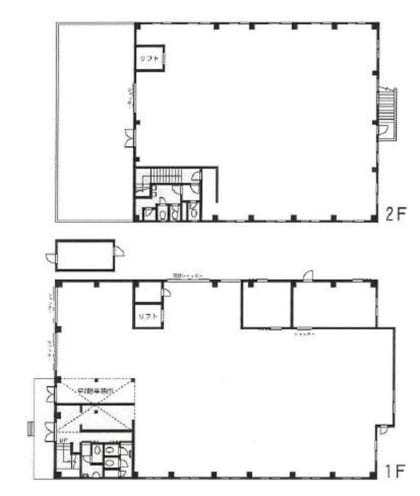
設備詳細
| 空調 | - |
|---|---|
| トイレ | - |
| 床仕様 | - |
| エレベータ | - |
| 駐車場設備 | - |
| その他 | スケルトン / 店舗可/飲食可 / 店舗可/飲食不可 / クリニック全般 / 新耐震 |
最寄り駅
| 最寄り駅 | 本鵠沼 徒歩7分 鵠沼海岸 徒歩12分 柳小路 徒歩19分 |
|---|
クリエート湘南第3ビルは、本鵠沼3丁目(藤沢市)に所在するオフィス賃貸です。
アクセスマップ
ストリートビュー









