宝食品ビル
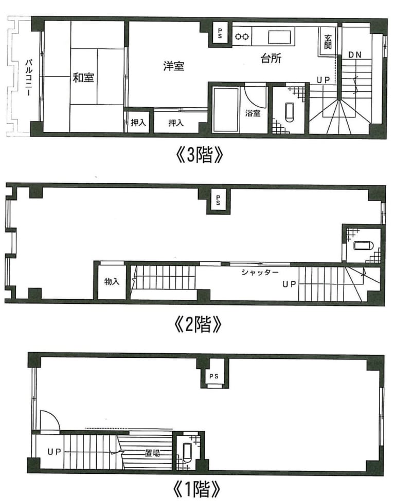
基準階図面
現在募集中の区画なし
| 階数 | 面積 | 賃料 + 共益費(税別) | 敷・保証 礼金敷金・保証金 / 礼金 | 検討 | ||
|---|---|---|---|---|---|---|
現在ビルアドにて登録されている貸室はございません。 | ||||||
物件情報
| 空室 | - |
|---|---|
| 物件名 | 宝食品ビル |
| 住所 | 東京都新宿区歌舞伎町1丁目10-18 |
| 構造 | 鉄骨造 / 地上3階 |
| 竣工 | 1977年1月 |
| 耐震基準 | - |
| 種別 | 事務所 |
設備詳細
| 空調 | 個別空調 |
|---|---|
| トイレ | - |
| 床仕様 | - |
| エレベータ | - |
| 駐車場設備 | - |
| その他 | - |
最寄り駅
| 最寄り駅 | 西武新宿 徒歩4分 新宿 徒歩4分 新宿三丁目 徒歩5分 |
|---|
宝食品ビルは、東京都新宿区の活気あふれる歌舞伎町1丁目に位置しております。この地域は、ビジネスとエンターテイメントが融合する日本でも特に注目されている地区の一つです。宝食品ビルは、優れたアクセスの利便性と、モダンな設備を兼ね備えたオフィス賃貸ビルとして、多様なビジネスニーズに応えるべく設計されています。以下に、その特徴や設備、立地についての重要な点を詳しくご紹介いたします。
【立地の魅力】
宝食品ビルは、新宿駅から徒歩圏内にあり、多数の交通機関によるアクセスが可能です。この立地は、東京都内はもちろん、関東圏からのアクセスも優れており、ビジネスの拠点として理想的な環境を提供します。また、歌舞伎町という日本を代表する繁華街に位置していることで、ビジネス後の接待や食事、娯楽の選択肢も豊富にあります。
【設備の特長】
宝食品ビルは、最新の設備と快適なオフィス環境を提供します。全フロアには、高速インターネット環境を完備し、ビジネスの効率性を高めるサポートをしています。また、セキュリティシステムも充実しており、24時間体制で安心してご利用いただけます。エレベーター、空調システムも最新のものを導入しており、働く人々の快適性と利便性を追求しています。
【ビルの独自性】
宝食品ビルの外観は、モダンで洗練されたデザインが特徴です。周囲の景観に溶け込みつつも、一際目を引く存在感を放っています。内装においても、高品質な素材を使用し、明るく開放的な空間を実現しました。このようなビルの独自性は、企業イメージを高める効果も期待できます。
【ビジネスにおける利点】
宝食品ビルは、立地、設備、デザインのすべてにおいて、ビジネスを行う上での利点が多くあります。交通の便が良く、多様なビジネスニーズに対応できる柔軟性を持っています。また、周囲には多数の飲食店や商業施設が集まっており、ビジネスの機会を広げることも可能です。さらに、快適なオフィス環境は、従業員の満足度を高め、生産性の向上にも寄与します。
宝食品ビルは、新宿区歌舞伎町というビジネスとエンターテイメントが融合する地域において、企業活動の成功をサポートするための理想的な環境を提供します。高い機能性と快適性を備えたこのビルは、あなたのビジネスを次のステージへと導く鍵となるでしょう。
アクセスマップ
ストリートビュー
階数 | 面積 | 賃料+共益費 | 詳細 |
|---|---|---|---|
| 1階 | 33.51坪 (110.77㎡) | 相談 | 詳細 |

