貸事務所・賃貸オフィス
横溝ビル
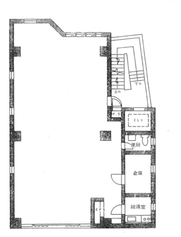
基準階図面
現在募集中の区画なし
| 階数 | 面積 | 賃料 + 共益費(税別) | 敷・保証 礼金敷金・保証金 / 礼金 | 検討 | ||
|---|---|---|---|---|---|---|
現在ビルアドにて登録されている貸室はございません。 | ||||||
物件情報
| 空室 | - |
|---|---|
| 物件名 | 横溝ビル |
| 住所 | 東京都世田谷区玉川3丁目6-7 |
| 構造 | RC / 地上5階 |
| 竣工 | 1991年1月 |
| 耐震基準 | 耐震基準クリア |
| 種別 | 事務所 |
設備詳細
| 空調 | 個別空調 |
|---|---|
| トイレ | - |
| 床仕様 | - |
| エレベータ | 1 基 |
| 駐車場設備 | - |
| その他 | 新耐震 / エレベータ有 |
最寄り駅
| 最寄り駅 | 二子玉川 徒歩2分 二子新地 徒歩8分 上野毛 徒歩14分 |
|---|
横溝ビルは、玉川3丁目(世田谷区)に所在するオフィス賃貸です。エレベーターは、1機です。
アクセスマップ
ストリートビュー
終了した募集区画
階数 | 面積 | 賃料+共益費 | 詳細 |
|---|---|---|---|
| 2階 | 38.22坪 (126.35㎡) | 相談 | 詳細 |
| 3階 | 37.71坪 (124.66㎡) | 相談 | 詳細 |

