貸事務所・賃貸オフィス
YKBサニービル
外観写真1
現在募集中の区画なし
| 階数 | 面積 | 賃料 + 共益費(税別) | 敷・保証 礼金敷金・保証金 / 礼金 | 検討 | ||
|---|---|---|---|---|---|---|
現在ビルアドにて登録されている貸室はございません。 | ||||||
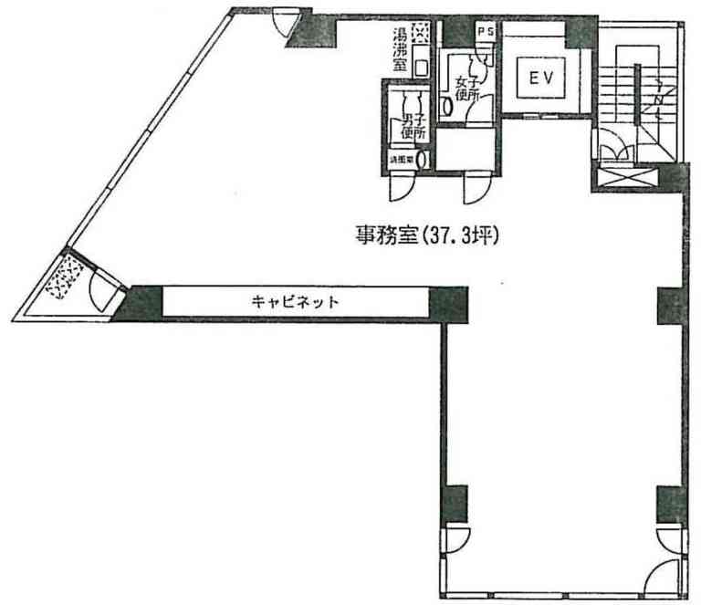
物件情報
| 空室 | - |
|---|---|
| 物件名 | YKBサニービル |
| 住所 | 東京都新宿区四谷4丁目32-8 |
| 構造 | SRC / 地上8階・地下1階 |
| 竣工 | 1987年3月 |
| 耐震基準 | 耐震基準クリア |
| 種別 | 事務所 |
設備詳細
| 空調 | - |
|---|---|
| トイレ | - |
| 床仕様 | - |
| エレベータ | 1 基 |
| 駐車場設備 | - |
| その他 | 新耐震 / エレベータ有 |
最寄り駅
| 最寄り駅 | 新宿御苑前 徒歩5分 四谷三丁目 徒歩5分 曙橋 徒歩9分 |
|---|
YKBサニービルは、四谷4丁目(新宿区)に所在するオフィス賃貸です。2面採光で、窓面広く明るい室内です。エレベーターは、1機です。
アクセスマップ
ストリートビュー
終了した募集区画
階数 | 面積 | 賃料+共益費 | 詳細 |
|---|---|---|---|
| 7階 | 22.79坪 (75.37㎡) | 相談 | 詳細 |
