貸倉庫
新吉田町住居付工場・倉庫ビル
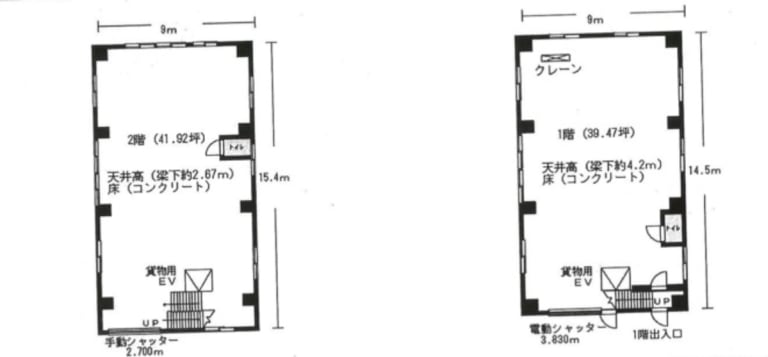
基準階図面
現在募集中の区画なし
| 階数 | 面積 | 賃料 + 共益費(税別) | 敷・保証 礼金敷金・保証金 / 礼金 | 検討 | ||
|---|---|---|---|---|---|---|
現在ビルアドにて登録されている貸室はございません。 | ||||||
物件情報
| 空室 | - |
|---|---|
| 物件名 | 新吉田町住居付工場・倉庫ビル |
| 住所 | 神奈川県横浜市 港北区新吉田町211-3 |
| 構造 | 鉄骨造 / 地上3階 |
| 竣工 | 1982年12月 |
| 耐震基準 | - |
| 種別 | 倉庫 |
設備詳細
| 空調 | - |
|---|---|
| トイレ | - |
| 床仕様 | - |
| エレベータ | 1 基 |
| 駐車場設備 | - |
| その他 | エレベータ有 |
最寄り駅
| 最寄り駅 | 東山田 徒歩8分 高田 徒歩11分 |
|---|
新吉田町住居付工場・倉庫ビルは、新吉田町(横浜市 港北区)に所在するSOHO・事務所利用相談のマンションです。エレベーターは、1機です。
アクセスマップ
ストリートビュー
終了した募集区画
階数 | 面積 | 賃料+共益費 | 詳細 |
|---|---|---|---|
| 1階 | 101.13坪 (334.3㎡) | 相談 | 詳細 |

