貸事務所・賃貸オフィス
STハイムビル
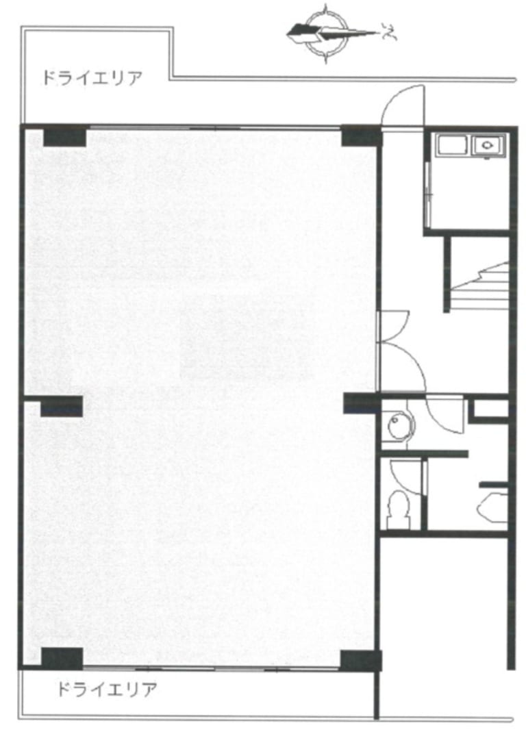
基準階図面
現在募集中の区画なし
| 階数 | 面積 | 賃料 + 共益費(税別) | 敷・保証 礼金敷金・保証金 / 礼金 | 検討 | ||
|---|---|---|---|---|---|---|
現在ビルアドにて登録されている貸室はございません。 | ||||||
物件情報
| 空室 | - |
|---|---|
| 物件名 | STハイムビル |
| 住所 | 東京都杉並区西荻南3丁目5-19 |
| 構造 | RC / 地上4階 |
| 竣工 | 1995年10月 |
| 耐震基準 | 耐震基準クリア |
| 種別 | 事務所 |
設備詳細
| 空調 | - |
|---|---|
| トイレ | - |
| 床仕様 | - |
| エレベータ | - |
| 駐車場設備 | - |
| その他 | 新耐震 |
最寄り駅
| 最寄り駅 | 西荻窪 徒歩3分 荻窪 徒歩20分 久我山 徒歩20分 |
|---|
STハイムビルは、西荻南3丁目(杉並区)に所在するSOHO・事務所利用相談のマンションです。
アクセスマップ
ストリートビュー
終了した募集区画
階数 | 面積 | 賃料+共益費 | 詳細 |
|---|---|---|---|
| B1階 | 20坪 (66.11㎡) | 相談 | 詳細 |

