アビスタ市ヶ谷ビル
外観写真1
現在募集中の区画(1区画)
※当サイトの表記はすべて税抜きとなり、消費税が別途加算されます。
| 階数 | 面積 | 賃料 + 共益費(税別) | 敷・保証 礼金敷金・保証金 / 礼金 | 検討 |
|---|---|---|---|---|
| 6階 | 63.14坪 (208.72㎡) | 1,262,800 円 (坪:20,000 円) | 相談/1ヶ月 |
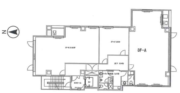
物件情報
| 空室 | あり |
|---|---|
| 物件名 | アビスタ市ヶ谷ビル |
| 住所 | 東京都千代田区九段南4丁目2-11 |
| 構造 | 鉄骨造 / 地上9階・地下1階 |
| 竣工 | 2008年11月 |
| 耐震基準 | 耐震基準クリア |
| 基準階坪数 | 63.14坪 |
| 種別 | 事務所 |
設備詳細
| 空調 | 個別空調 |
|---|---|
| トイレ | 男女別トイレ室内 / 男女別トイレ室外 |
| 床仕様 | OA有(フリーアクセスフロア) |
| エレベータ | 1 基 |
| 駐車場設備 | 空無 |
| その他 | 新耐震 / 機械警備 / 24時間利用可 |
最寄り駅
| 最寄り駅 | 市ケ谷 徒歩6分 市ケ谷 徒歩5分 市ヶ谷 徒歩5分 |
|---|
アビスタ市ヶ谷ビルは、東京都千代田区九段南4丁目に位置する、ビジネスの可能性を広げるオフィスビルです。2008年に竣工し、最新の耐震基準に準拠したこの物件は、安全性と快適性を兼ね備えた現代的な働き方をサポートします。地上に位置するスーパーマーケットは日々の買い物に便利であり、ビル内の設備も充実しています。トイレは男女別の共用部に配置され、働く全ての人に配慮した設計となっています。
この物件の最大の魅力は、その立地にあります。市ヶ谷駅から徒歩わずか2分というアクセスの良さは、従業員やビジネスパートナーとの円滑なコミュニケーションを促進します。また、角ビルであるため採光が非常に良く、オフィス内は常に明るく活気に満ちています。視認性も高いため、ビルを訪れるクライアントに良い印象を与えることができます。
駐車場がビル内に設けられている点も、この物件の大きな利点です。空き状況についてはお問い合わせが必要ですが、車でのアクセスを重視するビジネスには欠かせない設備です。また、ビル内には1機のエレベーターが設置されており、スムーズな移動をサポートします。
アビスタ市ヶ谷ビルは、SOHOや事務所利用の相談にも対応しており、さまざまなビジネスニーズに応える柔軟性を持っています。築浅でありながら良好な管理状態を保っているため、快適なオフィスライフを送ることができます。ビジネスの拠点としてはもちろん、新しい事業の立ち上げにも最適な環境を提供します。
是非、アビスタ市ヶ谷ビルを訪れ、その魅力を自身の目で確かめてください。ビジネスの成功に向けた第一歩を、このビルから始めませんか?
アクセスマップ
ストリートビュー
階数 | 面積 | 賃料+共益費 | 詳細 |
|---|---|---|---|
| 2階 | 34.75坪 (114.88㎡) | 相談 | 詳細 |
| 3階 | 29.1坪 (96.19㎡) | 相談 | 詳細 |
| 3階 | 34.04坪 (112.53㎡) | 相談 | 詳細 |





































































































