クレスト初台ビル
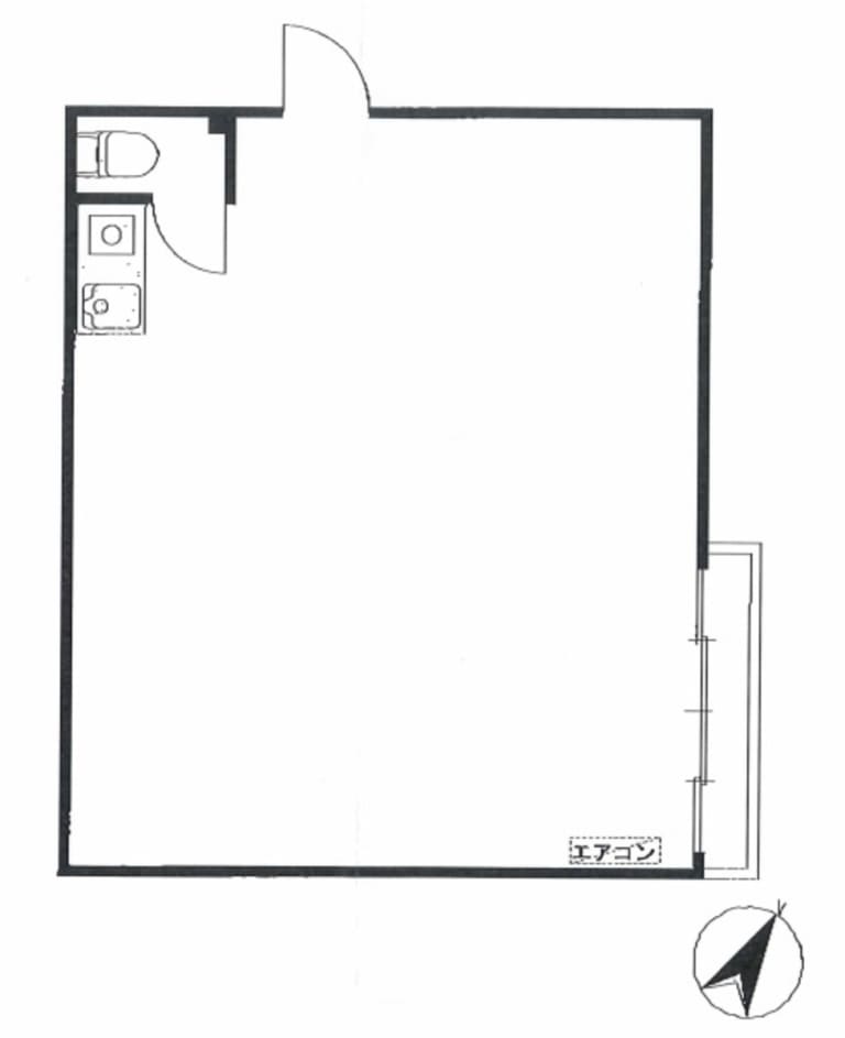
基準階図面
現在募集中の区画なし
| 階数 | 面積 | 賃料 + 共益費(税別) | 敷・保証 礼金敷金・保証金 / 礼金 | 検討 | ||
|---|---|---|---|---|---|---|
現在ビルアドにて登録されている貸室はございません。 | ||||||
物件情報
| 空室 | - |
|---|---|
| 物件名 | クレスト初台ビル |
| 住所 | 東京都渋谷区本町2丁目6-1 |
| 構造 | RC / 地上4階・地下1階 |
| 竣工 | 2017年3月 |
| 耐震基準 | 耐震基準クリア |
| 種別 | 事務所 |
設備詳細
| 空調 | - |
|---|---|
| トイレ | - |
| 床仕様 | - |
| エレベータ | - |
| 駐車場設備 | - |
| その他 | 新耐震 |
最寄り駅
| 最寄り駅 | 初台 徒歩6分 西新宿五丁目 徒歩10分 幡ヶ谷 徒歩11分 |
|---|
クレスト初台ビルは、東京都渋谷区本町2丁目に位置する、現代的なオフィスビルです。このビルは、ビジネスの中心地にあるという絶好の立地に加え、最新の設備を備え、各種企業のニーズに対応する設計が施されています。以下、クレスト初台ビルの特徴、立地、設備について詳しくご紹介します。
【特徴】
クレスト初台ビルは、そのモダンなデザインと機能性が際立つオフィスビルです。多様な業種の企業に適応する柔軟なオフィス空間が提供されており、新しいビジネスの形態にも対応可能です。また、省エネルギー設計が取り入れられており、環境に配慮した運営が可能です。これらの特徴は、企業のブランドイメージ向上にも寄与するでしょう。
【立地】
このビルは、渋谷区本町2丁目に位置し、渋谷や新宿といったビジネスエリアへのアクセスが非常に便利です。最寄り駅からは徒歩圏内にあり、公共交通機関を利用する従業員にとっても大きなメリットです。また、周辺には飲食店やコンビニエンスストアなどが充実しており、日々の業務に必要なものがすぐに手に入ります。
【設備】
ビル内は、高速インターネット接続、セキュリティシステム、24時間利用可能なエアコン、災害時に備えた耐震構造など、最新の設備が完備されています。これにより、企業は安心してビジネスを運営することができます。また、快適なワーキングスペースを実現するための細かな配慮も見られ、従業員の働きやすさを高める環境が整っています。
【まとめ】
クレスト初台ビルは、その立地の良さ、モダンで機能性に富んだ設計、そして最新の設備を兼ね備えたオフィスビルです。ビジネスの中心地でありながら、快適な労働環境を提供するこのビルは、多様な企業のニーズに応えることができるでしょう。企業の成長を支える基盤として、クレスト初台ビルは最適な選択肢の一つです。
アクセスマップ
ストリートビュー
階数 | 面積 | 賃料+共益費 | 詳細 |
|---|---|---|---|
| B1階 | 12.7坪 (41.98㎡) | 相談 | 詳細 |
| 4階 | 11.23坪 (37.12㎡) | 相談 | 詳細 |

