貸店舗・テナント
糀谷会館ビル
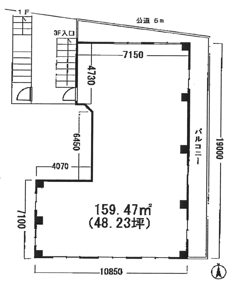
基準階図面
現在募集中の区画なし
| 階数 | 面積 | 賃料 + 共益費(税別) | 敷・保証 礼金敷金・保証金 / 礼金 | 検討 | ||
|---|---|---|---|---|---|---|
現在ビルアドにて登録されている貸室はございません。 | ||||||
物件情報
| 空室 | - |
|---|---|
| 物件名 | 糀谷会館ビル |
| 住所 | 東京都大田区萩中1丁目6-7 |
| 構造 | RC / 地上4階 |
| 竣工 | 1971年1月 |
| 耐震基準 | - |
| 種別 | 店舗 |
設備詳細
| 空調 | - |
|---|---|
| トイレ | - |
| 床仕様 | - |
| エレベータ | - |
| 駐車場設備 | - |
| その他 | スケルトン / クリニック全般 |
最寄り駅
| 最寄り駅 | 糀谷 徒歩3分 大鳥居 徒歩12分 京急蒲田 徒歩14分 |
|---|
糀谷会館ビルは、萩中1丁目(大田区)に所在するオフィス賃貸です。
アクセスマップ
ストリートビュー
終了した募集区画
階数 | 面積 | 賃料+共益費 | 詳細 |
|---|---|---|---|
| 2階 | 48.23坪 (159.44㎡) | 相談 | 詳細 |

