貸事務所・賃貸オフィス貸店舗・テナント
アクセスビル
外観写真1
現在募集中の区画なし
| 階数 | 面積 | 賃料 + 共益費(税別) | 敷・保証 礼金敷金・保証金 / 礼金 | 検討 | ||
|---|---|---|---|---|---|---|
現在ビルアドにて登録されている貸室はございません。 | ||||||
物件情報
| 空室 | - |
|---|---|
| 物件名 | アクセスビル |
| 住所 | 東京都中野区野方1丁目29-2 |
| 構造 | RC / 地上6階 |
| 竣工 | 1991年5月 |
| 耐震基準 | 耐震基準クリア |
| 種別 | その他 / 事務所 / 店舗 |
設備詳細
| 空調 | - |
|---|---|
| トイレ | - |
| 床仕様 | - |
| エレベータ | 1 基 |
| 駐車場設備 | - |
| その他 | フリーレント / クリニック全般 / 新耐震 / エレベータ有 |
最寄り駅
| 最寄り駅 | 中野 徒歩13分 高円寺 徒歩15分 中野 徒歩9分 |
|---|
アクセスビルは、野方1丁目(中野区)に所在するSOHO・事務所利用相談のマンションです。エレベーターは、1機です。
アクセスマップ
ストリートビュー
終了した募集区画
階数 | 面積 | 賃料+共益費 | 詳細 |
|---|---|---|---|
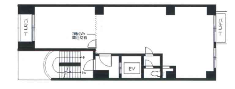
| 1階 | 19.03坪 (62.9㎡) | 相談 | 詳細 |
| 2階 | 19.02坪 (62.9㎡) | 相談 | 詳細 |
| 3階 | 19.03坪 (62.9㎡) | 相談 | 詳細 |
| 4階 | 19.02坪 (62.9㎡) | 相談 | 詳細 |

