貸事務所・賃貸オフィス
登戸一括貸店舗・事務所ビル
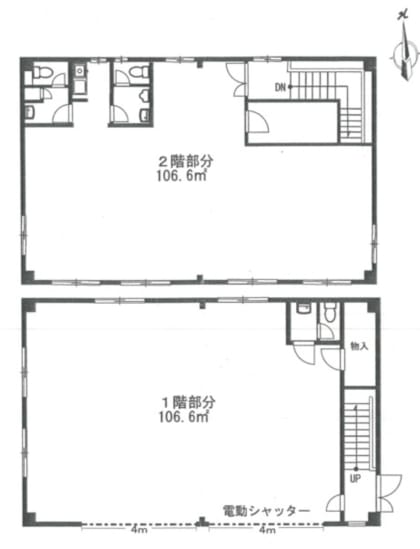
現在募集中の区画(1区画)
※当サイトの表記はすべて税抜きとなり、消費税が別途加算されます。
| 階数 | 面積 | 賃料 + 共益費(税別) | 敷・保証 礼金敷金・保証金 / 礼金 | 検討 |
|---|---|---|---|---|
| 1-2階 | 69.64坪 (230.22㎡) | 800,000 円 (坪:11,487 円) | 3ヶ月/1ヶ月 |
物件情報
| 空室 | あり |
|---|---|
| 物件名 | 登戸一括貸店舗・事務所ビル |
| 住所 | 神奈川県川崎市 多摩区登戸2636-4 |
| 構造 | 木造 / 地上2階 |
| 竣工 | 2025年3月 |
| 耐震基準 | - |
| 種別 | 事務所 |
設備詳細
| 空調 | - |
|---|---|
| トイレ | - |
| 床仕様 | - |
| エレベータ | - |
| 駐車場設備 | - |
| その他 | - |
最寄り駅
| 最寄り駅 | 登戸 徒歩3分 向ヶ丘遊園 徒歩3分 宿河原 徒歩13分 |
|---|
登戸一括貸店舗・事務所は、小田急電鉄小田原線「登戸駅」および南武線「登戸駅」から徒歩3分の距離に位置しています。川崎市多摩区登戸アドレスに所在し、周辺には住居や店舗などが点在しています。地上2階建ての一棟貸し物件で、単独での建物利用が可能です。これにより、建物全体を活用したプランや、フロアごとの用途分けなど、目的や業態に合わせて柔軟なレイアウトを検討することができます。
通りからの視認性や導線を活かした店舗展開、あるいはワンテナントによる事務所利用など、様々な事業形態を想定した使い方が可能です。建物全体をご利用いただくことで、独立性の高い運営や、専有スペースの確保が容易になります。また、最寄り駅から徒歩圏内にあり、川崎市内や周辺エリアからの移動も比較的行いやすい立地です。フロアの分割や専用出入口の設置といったレイアウトも検討しやすい構造となっています。詳細はお問い合わせください。
アクセスマップ
ストリートビュー



