貸事務所・賃貸オフィス
笹野台ビル
物件情報
| 空室 | あり |
|---|---|
| 物件名 | 笹野台ビル |
| 住所 | 神奈川県横浜市 旭区笹野台1丁目28-3 |
| 構造 | RC / 地上3階・地下1階 |
| 竣工 | 2025年11月 |
| 耐震基準 | - |
| 種別 | 事務所 |
設備詳細
| 空調 | - |
|---|---|
| トイレ | - |
| 床仕様 | - |
| エレベータ | 1 基 |
| 駐車場設備 | - |
| その他 | - |
最寄り駅
| 最寄り駅 | 三ツ境 徒歩2分 希望ケ丘 徒歩22分 瀬谷 徒歩35分 |
|---|
横浜市旭区笹野台1丁目に位置する「仮)笹野台ビル新築工事」は、相模鉄道本線「三ツ境駅」から徒歩2分の場所に所在しています。三ツ境駅から至近のため、駅周辺の商業エリアや地域の主要施設へのアクセスが容易です。また、希望ケ丘駅や瀬谷駅からもアクセスが可能です。
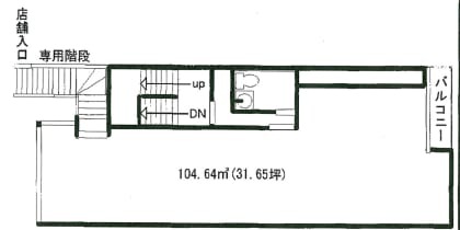
本物件は地上3階・地下1階の構成となっており、一棟貸しの仕様です。エレベーターを1基備えているため、フロア間の移動が行いやすい造りです。複数フロアの活用がしやすく、ワンテナントによる業務展開や事業所として利用する際に、フロアごとに用途や部門を分けて運用するイメージが想定されます。
一棟貸しの特性上、入居者の事業方針や運用計画に合わせてレイアウトを検討することができます。周辺は住宅地および商店が点在するエリアであり、地域の生活動線に位置しています。
建物の詳細や現地内覧については、お問い合わせください。
アクセスマップ
ストリートビュー
終了した募集区画
階数 | 面積 | 賃料+共益費 | 詳細 |
|---|---|---|---|
| 3階 | 30坪 (99.19㎡) | 相談 | 詳細 |












