貸事務所・賃貸オフィス
芦花公園駅南側店舗ビル
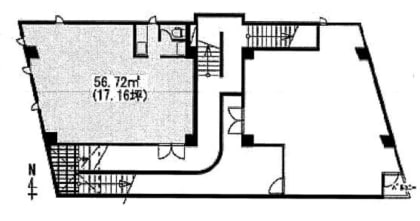
現在募集中の区画(1区画)
※当サイトの表記はすべて税抜きとなり、消費税が別途加算されます。
| 階数 | 面積 | 賃料 + 共益費(税別) | 敷・保証 礼金敷金・保証金 / 礼金 | 検討 |
|---|---|---|---|---|
| 1階 | 18.39坪 (60.81㎡) | 相談 | 12ヶ月/1ヶ月 |
物件情報
| 空室 | あり |
|---|---|
| 物件名 | 芦花公園駅南側店舗ビル |
| 住所 | 東京都世田谷区南烏山2丁目36-5 |
| 耐震基準 | - |
| 種別 | 事務所 |
設備詳細
| 空調 | - |
|---|---|
| トイレ | - |
| 床仕様 | - |
| エレベータ | - |
| 駐車場設備 | - |
| その他 | - |
最寄り駅
| 最寄り駅 | 芦花公園 徒歩2分 八幡山 徒歩7分 千歳烏山 徒歩9分 |
|---|
世田谷区南烏山2丁目に位置する「芦花公園駅南側店舗」は、京王電鉄京王線「芦花公園駅」から徒歩2分、「八幡山駅」からも徒歩7分という立地が特徴です。駅からの距離が短く、来訪者や従業員の動線を意識したい法人利用にも配慮しやすい場所にあります。
周辺は住宅地が広がるエリアで、日常的な人の流れがあることから、地域密着型のサービス業や物販、クリニックなど、多様な事業形態での利用をイメージできます。建物は通りからも視認しやすい位置にあり、近隣住民だけでなく、駅を利用する人々の目にも留まりやすい環境です。
世田谷区南烏山は、公共交通機関の利用が盛んな地域として知られ、日々多くの人が行き交います。業種によっては、駅からのアクセスの良さや地域住民の生活動線を活かした店舗展開や営業拠点の設置も検討しやすい環境です。
周辺には飲食店や生活利便施設も点在しており、事業運営にあたり周囲との連携や地域との関係づくりも想定しやすくなっています。詳細はお問い合わせください。
アクセスマップ
ストリートビュー























































