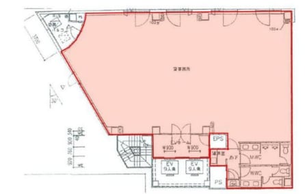
芝公園リッジビル 7階 63.22坪
賃貸情報
※当サイトの表記はすべて税抜きとなり、消費税が別途加算されます。
- 賃料
- 1,043,130 円
(坪:16,500 円)
- 面積
- 63.22坪 (208.99㎡)
- 共益/管理費
- 管理費212,870 円
- 敷金/保証金
- 10ヶ月
- 更新料
- 新賃料1ヶ月
- 礼金/償却
- 無 / 1ヶ月
- 住所
- 東京都港区芝公園1丁目8-21
- 構造
- 鉄骨造 / 地上9階・地下1階
- 規模
- -地上9階 ・ 地下1階
- 主な用途
- -
- 竣工
- 1994年9月
- 契約形態
- -
- 入居可能日
- 予定 2026年 6月 上旬
- 天井高
- 2.6m
- エレベータ
- 2基
- 駐車場
- 空有
- 基準階坪数
- -
その他条件
| 償却 | 1ヶ月 |
|---|---|
| 更新料 | 新賃料1ヶ月 |
| その他の費用 |
物件情報
| 空室 | あり |
|---|---|
| 物件名 | 芝公園リッジビル |
| 住所 | 東京都港区芝公園1丁目8-21 |
| 構造 | 鉄骨造 / 地上9階・地下1階 |
| 竣工 | 1994年9月 |
| 耐震基準 | 耐震基準クリア |
| 基準階坪数 | 61坪 |
設備詳細
| 空調 | 個別空調 |
|---|---|
| トイレ | 男女別トイレ室内 / 男女別トイレ室外 |
| 床仕様 | OA有(フリーアクセスフロア) |
| エレベータ | 2 基 |
| 駐車場設備 | 空有 |
| その他 | 新耐震 / 機械警備 / 24時間利用可 |
最寄り駅
| 最寄り駅 | 御成門 徒歩4分 浜松町 徒歩6分 大門 徒歩5分 |
|---|
アクセスマップ
ストリートビュー










































