現在この物件は埋まっています
相武台ロンタンビル 2階 77.14坪
賃貸情報
※当サイトの表記はすべて税抜きとなり、消費税が別途加算されます。
- 賃料
- 相談
- 面積
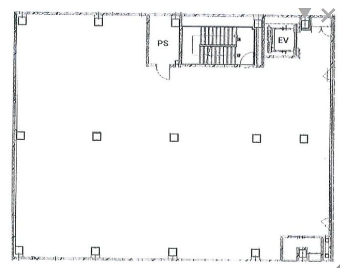
- 77.14坪 (255.03㎡)
- 共益/管理費
- 管理費38,570 円
- 敷金/保証金
- 10ヶ月
- 更新料
- 新賃料1ヶ月
- 礼金/償却
- 1ヶ月 / 20%
- 住所
- 神奈川県座間市相武台1丁目35-8
- 構造
- 鉄骨造 / 地上5階
- 規模
- -地上5階
- 主な用途
- -
- 竣工
- 2016年11月
- 契約形態
- -
- 入居可能日
- 即時
- 天井高
- 3m
- エレベータ
- 1基
- 駐車場
- -
- 基準階坪数
- -
その他条件
| 償却 | 20% |
|---|---|
| 更新料 | 新賃料1ヶ月 |
| その他の費用 |
物件情報
| 空室 | - |
|---|---|
| 物件名 | 相武台ロンタンビル |
| 住所 | 神奈川県座間市相武台1丁目35-8 |
| 構造 | 鉄骨造 / 地上5階 |
| 竣工 | 2016年11月 |
| 耐震基準 | 耐震基準クリア |
設備詳細
| 空調 | - |
|---|---|
| トイレ | - |
| 床仕様 | - |
| エレベータ | 1 基 |
| 駐車場設備 | - |
| その他 | 新耐震 |
最寄り駅
| 最寄り駅 | 相武台前 徒歩1分 |
|---|
アクセスマップ
ストリートビュー


