現在この物件は埋まっています
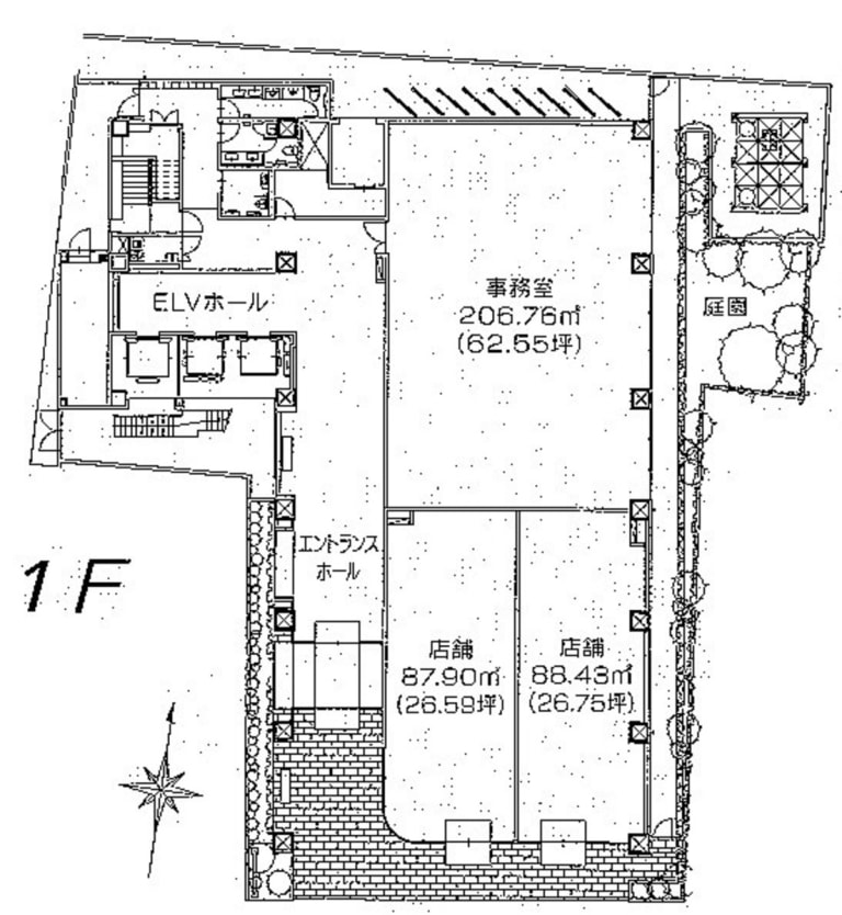
ieMARUNOUCHIビル 1階 26.59坪
図面
賃貸情報
※当サイトの表記はすべて税抜きとなり、消費税が別途加算されます。
- 賃料
- 相談
- 面積
- 26.59坪 (87.9㎡)
- 共益/管理費
- 共益費相談
- 敷金/保証金
- 12ヶ月
- 更新料
- 無
- 礼金/償却
- 無 / 無
- 住所
- 愛知県名古屋市 中区丸の内1丁目15-18
- 構造
- 鉄骨造 / 地上12階
- 規模
- -地上12階
- 主な用途
- -
- 竣工
- 2009年4月
- 契約形態
- -
- 入居可能日
- -
- 天井高
- 2.7m
- エレベータ
- 3基
- 駐車場
- 空有
- 基準階坪数
- -
その他条件
| 償却 | 無 |
|---|---|
| 更新料 | 無 |
| その他の費用 |
物件情報
| 空室 | - |
|---|---|
| 物件名 | ieMARUNOUCHIビル |
| 住所 | 愛知県名古屋市 中区丸の内1丁目15-18 |
| 構造 | 鉄骨造 / 地上12階 |
| 竣工 | 2009年4月 |
| 耐震基準 | 耐震基準クリア |
設備詳細
| 空調 | - |
|---|---|
| トイレ | - |
| 床仕様 | - |
| エレベータ | 3 基 |
| 駐車場設備 | 空有 |
| その他 | 新耐震 / デザイナーズ / エレベータ有 / 大型ビル |
最寄り駅
| 最寄り駅 | 丸の内 徒歩3分 国際センター 徒歩5分 伏見 徒歩7分 |
|---|
アクセスマップ
ストリートビュー














