現在この物件は埋まっています
クリスタルビル 2階 41.9坪
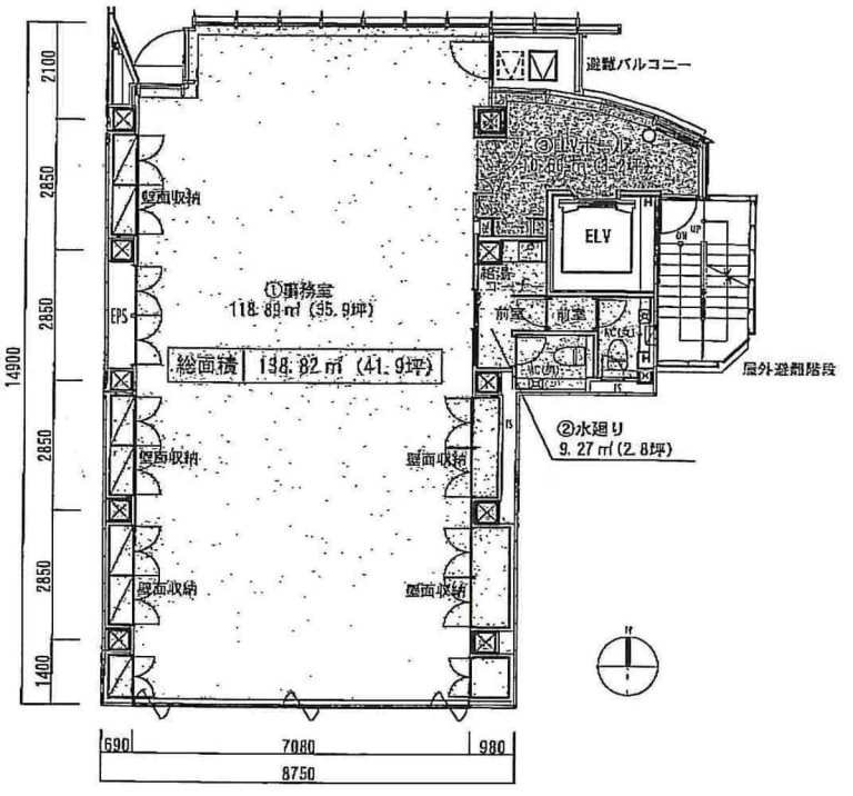
図面
賃貸情報
※当サイトの表記はすべて税抜きとなり、消費税が別途加算されます。
- 賃料
- 相談
- 面積
- 41.9坪 (138.81㎡)
- 共益/管理費
- 管理費125,700 円
- 敷金/保証金
- 10ヶ月
- 更新料
- 無
- 礼金/償却
- 無 / 無
- 住所
- 東京都千代田区神田須田町2丁目17-18
- 構造
- 地上11階・地下1階
- 規模
- -地上11階 ・ 地下1階
- 主な用途
- -
- 竣工
- 2009年6月
- 契約形態
- -
- 入居可能日
- 即時
- 天井高
- 2.6m
- エレベータ
- 1基
- 駐車場
- -
- 基準階坪数
- -
その他条件
| 償却 | 無 |
|---|---|
| 更新料 | 無 |
| その他の費用 |
物件情報
| 空室 | - |
|---|---|
| 物件名 | クリスタルビル |
| 住所 | 東京都千代田区神田須田町2丁目17-18 |
| 構造 | 地上11階・地下1階 |
| 竣工 | 2009年6月 |
| 耐震基準 | 耐震基準クリア |
設備詳細
| 空調 | - |
|---|---|
| トイレ | - |
| 床仕様 | - |
| エレベータ | 1 基 |
| 駐車場設備 | - |
| その他 | 新耐震 / 光ファイバー / 機械警備 / 24時間利用可 |
最寄り駅
| 最寄り駅 | 秋葉原 徒歩5分 秋葉原 徒歩2分 岩本町 徒歩5分 |
|---|
アクセスマップ
ストリートビュー



















































































