現在この物件は埋まっています
関内伊藤ビル 4階 17.5坪
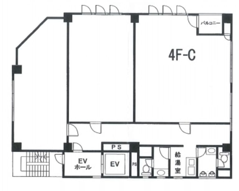
図面
賃貸情報
※当サイトの表記はすべて税抜きとなり、消費税が別途加算されます。
- 賃料
- 相談
- 面積
- 17.5坪 (57.74㎡)
- 共益/管理費
- 共益費賃料込
- 敷金/保証金
- 3ヶ月
- 更新料
- 新賃料1ヶ月
- 礼金/償却
- 無 / 0.5ヶ月
- 住所
- 神奈川県横浜市 中区翁町1丁目6-7
- 構造
- SRC / 地上8階
- 規模
- -地上8階
- 主な用途
- -
- 竣工
- 1992年10月
- 契約形態
- -
- 入居可能日
- -
- 天井高
- エレベータ
- 1基
- 駐車場
- 空無
- 基準階坪数
- -
その他条件
| 償却 | 0.5ヶ月 |
|---|---|
| 更新料 | 新賃料1ヶ月 |
| その他の費用 |
物件情報
| 空室 | - |
|---|---|
| 物件名 | 関内伊藤ビル |
| 住所 | 神奈川県横浜市 中区翁町1丁目6-7 |
| 構造 | SRC / 地上8階 |
| 竣工 | 1992年10月 |
| 耐震基準 | 耐震基準クリア |
| 基準階坪数 | 53.587坪 |
設備詳細
| 空調 | - |
|---|---|
| トイレ | - |
| 床仕様 | - |
| エレベータ | 1 基 |
| 駐車場設備 | 空無 |
| その他 | 新耐震 |
最寄り駅
| 最寄り駅 | 関内 徒歩4分 伊勢佐木長者町 徒歩5分 関内 徒歩6分 |
|---|
アクセスマップ
ストリートビュー
























