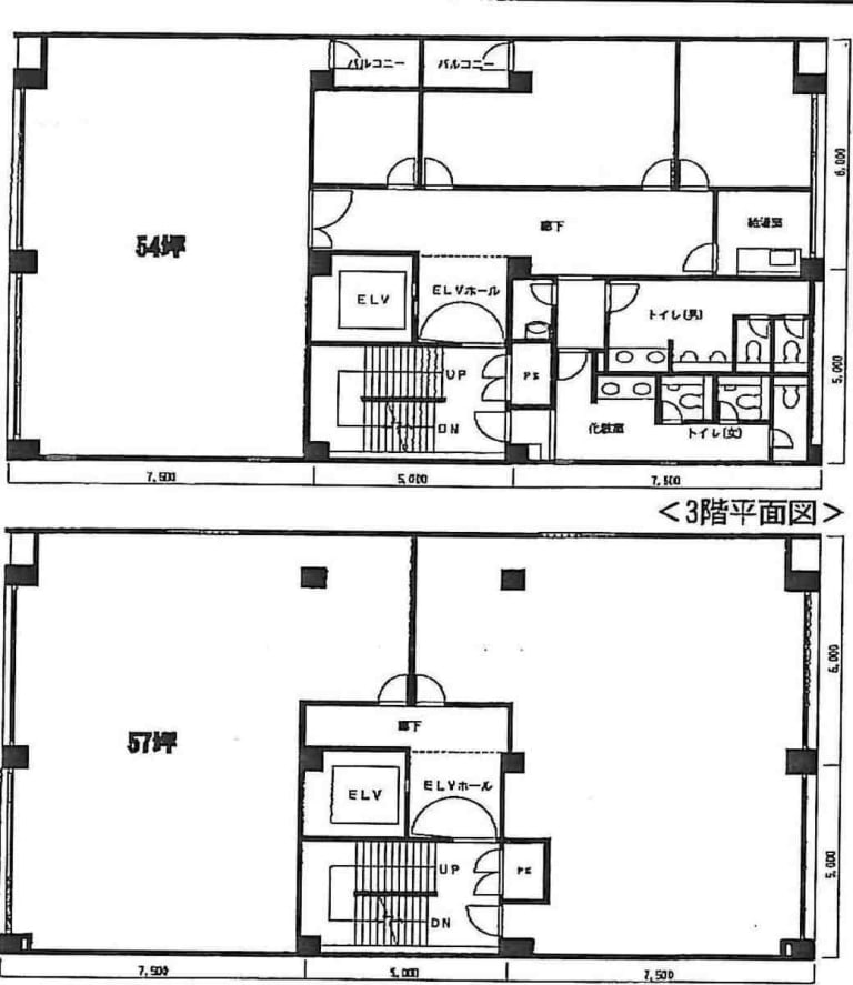
OF信濃町ビル 2-3階 117.97坪
図面
賃貸情報
※当サイトの表記はすべて税抜きとなり、消費税が別途加算されます。
- 賃料
- 1,288,000 円
(坪:10,918 円)
- 面積
- 117.97坪 (390㎡)
- 共益/管理費
- 共益費160,000 円
- 敷金/保証金
- 6ヶ月
- 更新料
- 新賃料1ヶ月
- 礼金/償却
- 1ヶ月 / 無
- 住所
- 東京都新宿区南元町4-45
- 構造
- 鉄骨造 / 地上3階・地下1階
- 規模
- -地上3階 ・ 地下1階
- 主な用途
- -
- 竣工
- 1990年3月
- 契約形態
- -
- 入居可能日
- -
- 天井高
- エレベータ
- 1基
- 駐車場
- 空有
- 基準階坪数
- -
その他条件
| 償却 | 無 |
|---|---|
| 更新料 | 新賃料1ヶ月 |
| その他の費用 |
物件情報
| 空室 | あり |
|---|---|
| 物件名 | OF信濃町ビル |
| 住所 | 東京都新宿区南元町4-45 |
| 構造 | 鉄骨造 / 地上3階・地下1階 |
| 竣工 | 1990年3月 |
| 耐震基準 | 耐震基準クリア |
設備詳細
| 空調 | 個別空調 |
|---|---|
| トイレ | 男女別トイレ室内 / 男女別トイレ室外 |
| 床仕様 | - |
| エレベータ | 1 基 |
| 駐車場設備 | - |
| その他 | 居抜き / 店舗可/飲食不可 / クリニック全般 / 新耐震 / 光ファイバー / 機械警備 / 24時間利用可 / オートロック |
最寄り駅
| 最寄り駅 | 信濃町 徒歩7分 信濃町 徒歩3分 四ツ谷 徒歩8分 |
|---|
アクセスマップ
ストリートビュー































