現在この物件は埋まっています
呉羽小野木ビル 4階 15.5坪
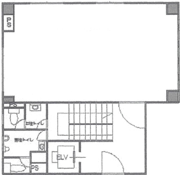
図面
賃貸情報
※当サイトの表記はすべて税抜きとなり、消費税が別途加算されます。
- 賃料
- 相談
- 面積
- 15.5坪 (51.24㎡)
- 共益/管理費
- 共益費10,000 円
- 敷金/保証金
- 3ヶ月
- 更新料
- 新賃料1ヶ月
- 礼金/償却
- 1ヶ月 / 無
- 住所
- 東京都渋谷区代々木2丁目20-12
- 構造
- RC / 地上4階・地下1階
- 規模
- -地上4階 ・ 地下1階
- 主な用途
- -
- 竣工
- 1973年10月
- 契約形態
- -
- 入居可能日
- 即時
- 天井高
- 2.48m
- エレベータ
- 1基
- 駐車場
- -
- 基準階坪数
- -
その他条件
| 償却 | 無 |
|---|---|
| 更新料 | 新賃料1ヶ月 |
| その他の費用 |
物件情報
| 空室 | - |
|---|---|
| 物件名 | 呉羽小野木ビル |
| 住所 | 東京都渋谷区代々木2丁目20-12 |
| 構造 | RC / 地上4階・地下1階 |
| 竣工 | 1973年10月 |
| 耐震基準 | - |
設備詳細
| 空調 | - |
|---|---|
| トイレ | - |
| 床仕様 | - |
| エレベータ | 1 基 |
| 駐車場設備 | - |
| その他 | - |
最寄り駅
| 最寄り駅 | 新宿 徒歩4分 南新宿 徒歩4分 代々木 徒歩6分 |
|---|
アクセスマップ
ストリートビュー






















































