現在この物件は埋まっています
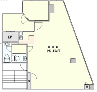
日月光ビル 3階 29.47坪
賃貸情報
※当サイトの表記はすべて税抜きとなり、消費税が別途加算されます。
- 賃料
- 相談
- 面積
- 29.47坪 (97.43㎡)
- 共益/管理費
- 管理費5,000 円
- 敷金/保証金
- 6ヶ月
- 更新料
- 新賃料1ヶ月
- 礼金/償却
- 1ヶ月 / 無
- 住所
- 東京都渋谷区代々木3丁目1-4
- 構造
- RC / 地上5階
- 規模
- -地上5階
- 主な用途
- -
- 竣工
- 1991年9月
- 契約形態
- -
- 入居可能日
- -
- 天井高
- エレベータ
- 1基
- 駐車場
- 空有
- 基準階坪数
- -
その他条件
| 償却 | 無 |
|---|---|
| 更新料 | 新賃料1ヶ月 |
| その他の費用 |
物件情報
| 空室 | あり |
|---|---|
| 物件名 | 日月光ビル |
| 住所 | 東京都渋谷区代々木3丁目1-4 |
| 構造 | RC / 地上5階 |
| 竣工 | 1991年9月 |
| 耐震基準 | 耐震基準クリア |
設備詳細
| 空調 | 個別空調 |
|---|---|
| トイレ | 男女別トイレ室内 / 男女別トイレ室外 |
| 床仕様 | OA有(フリーアクセスフロア) |
| エレベータ | 1 基 |
| 駐車場設備 | 空有 |
| その他 | 店舗可/飲食不可 / フリーレント / 新耐震 / 機械警備 / 24時間利用可 / オートロック |
最寄り駅
| 最寄り駅 | 代々木 徒歩7分 参宮橋 徒歩6分 南新宿 徒歩4分 |
|---|
アクセスマップ
ストリートビュー








































































