現在この物件は埋まっています
CBM本社ビル 3階 84.86坪
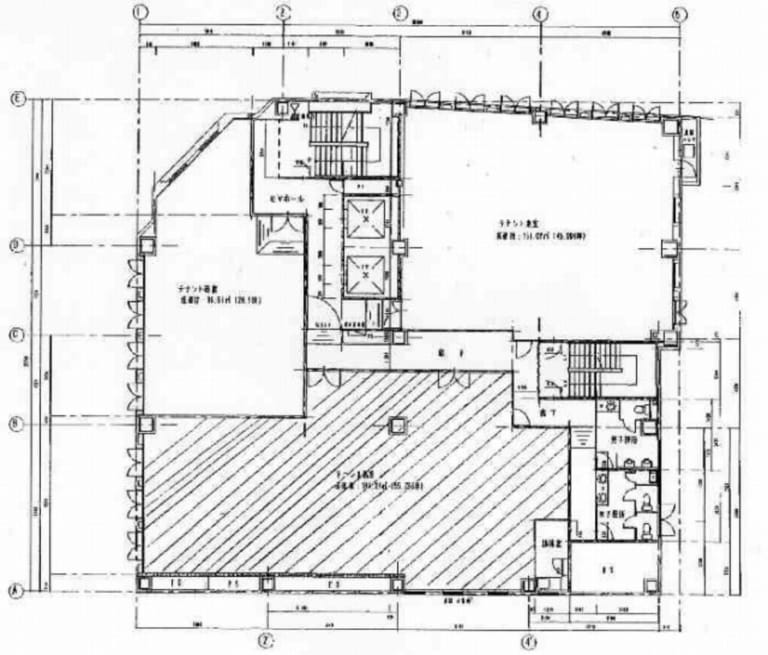
図面
賃貸情報
※当サイトの表記はすべて税抜きとなり、消費税が別途加算されます。
- 賃料
- 相談
- 面積
- 84.86坪 (280.53㎡)
- 共益/管理費
- 共益費未定
- 敷金/保証金
- 相談
- 更新料
- 無
- 礼金/償却
- 無 / 無
- 住所
- 東京都中野区中野5丁目68-10
- 構造
- SRC / 地上7階・地下2階
- 規模
- -地上7階 ・ 地下2階
- 主な用途
- -
- 竣工
- 1989年11月
- 契約形態
- -
- 入居可能日
- 即時
- 天井高
- エレベータ
- -
- 駐車場
- -
- 基準階坪数
- -
その他条件
| 償却 | 無 |
|---|---|
| 更新料 | 無 |
| その他の費用 |
物件情報
| 空室 | - |
|---|---|
| 物件名 | CBM本社ビル |
| 住所 | 東京都中野区中野5丁目68-10 |
| 構造 | SRC / 地上7階・地下2階 |
| 竣工 | 1989年11月 |
| 耐震基準 | 耐震基準クリア |
設備詳細
| 空調 | - |
|---|---|
| トイレ | - |
| 床仕様 | - |
| エレベータ | - |
| 駐車場設備 | - |
| その他 | 新耐震 / 大型ビル |
最寄り駅
| 最寄り駅 | 中野 徒歩4分 中野 徒歩6分 新井薬師前 徒歩12分 |
|---|
アクセスマップ
ストリートビュー




