現在この物件は埋まっています
KR GINZAⅡビル 7階 132.13坪
賃貸情報
※当サイトの表記はすべて税抜きとなり、消費税が別途加算されます。
- 賃料
- 相談
- 面積
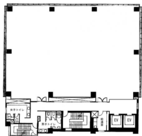
- 132.13坪 (436.81㎡)
- 共益/管理費
- 共益費賃料込
- 敷金/保証金
- 8ヶ月
- 更新料
- 無
- 礼金/償却
- 無 / 無
- 住所
- 東京都中央区銀座2丁目15-2
- 構造
- 地上8階・地下1階
- 規模
- -地上8階 ・ 地下1階
- 主な用途
- -
- 竣工
- 2008年9月
- 契約形態
- -
- 入居可能日
- 即時
- 天井高
- 2.7m
- エレベータ
- 2基
- 駐車場
- 空有
- 基準階坪数
- -
その他条件
| 償却 | 無 |
|---|---|
| 更新料 | 無 |
| その他の費用 |
物件情報
| 空室 | あり |
|---|---|
| 物件名 | KR GINZAⅡビル |
| 住所 | 東京都中央区銀座2丁目15-2 |
| 構造 | 地上8階・地下1階 |
| 竣工 | 2008年9月 |
| 耐震基準 | 耐震基準クリア |
設備詳細
| 空調 | 個別空調 |
|---|---|
| トイレ | 男女別トイレ室内 / 男女別トイレ室外 |
| 床仕様 | OA有(フリーアクセスフロア) |
| エレベータ | 2 基 |
| 駐車場設備 | 空有 |
| その他 | 居抜き / フリーレント / 新耐震 / 大型ビル |
最寄り駅
| 最寄り駅 | 新富町 徒歩2分 東銀座 徒歩4分 東銀座 徒歩5分 |
|---|
アクセスマップ
ストリートビュー
























































