御成門ビル 9階 17.4坪
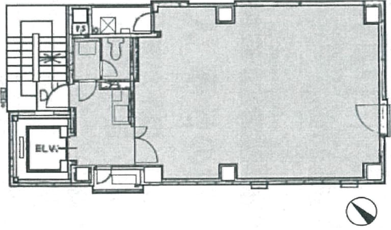
図面
賃貸情報
※当サイトの表記はすべて税抜きとなり、消費税が別途加算されます。
- 賃料
- 240,000 円
(坪:13,793 円)
- 面積
- 17.4坪 (57.53㎡)
- 共益/管理費
- 管理費66,120 円
- 敷金/保証金
- 6ヶ月
- 更新料
- 新賃料1ヶ月
- 礼金/償却
- 無 / 2ヶ月
- 住所
- 東京都港区西新橋3丁目24-5
- 構造
- 鉄骨造 / 地上9階
- 規模
- -地上9階
- 主な用途
- -
- 竣工
- 1983年10月
- 契約形態
- -
- 入居可能日
- 即時
- 天井高
- 2.27m
- エレベータ
- 1基
- 駐車場
- -
- 基準階坪数
- -
その他条件
| 償却 | 2ヶ月 |
|---|---|
| 更新料 | 新賃料1ヶ月 |
| その他の費用 |
物件情報
| 空室 | あり |
|---|---|
| 物件名 | 御成門ビル |
| 住所 | 東京都港区西新橋3丁目24-5 |
| 構造 | 鉄骨造 / 地上9階 |
| 竣工 | 1983年10月 |
| 耐震基準 | 耐震基準クリア |
設備詳細
| 空調 | 個別空調 |
|---|---|
| トイレ | 男女共用トイレ室外 |
| 床仕様 | - |
| エレベータ | 1 基 |
| 駐車場設備 | - |
| その他 | 新耐震 / 光ファイバー / 機械警備 / 24時間利用可 |
最寄り駅
| 最寄り駅 | 神谷町 徒歩8分 御成門 徒歩1分 大門 徒歩10分 |
|---|
アクセスマップ
ストリートビュー





























































































