現在この物件は埋まっています
アイ・アンド・イー日本橋ビル 8階 101.49坪
賃貸情報
※当サイトの表記はすべて税抜きとなり、消費税が別途加算されます。
- 賃料
- 相談
- 面積
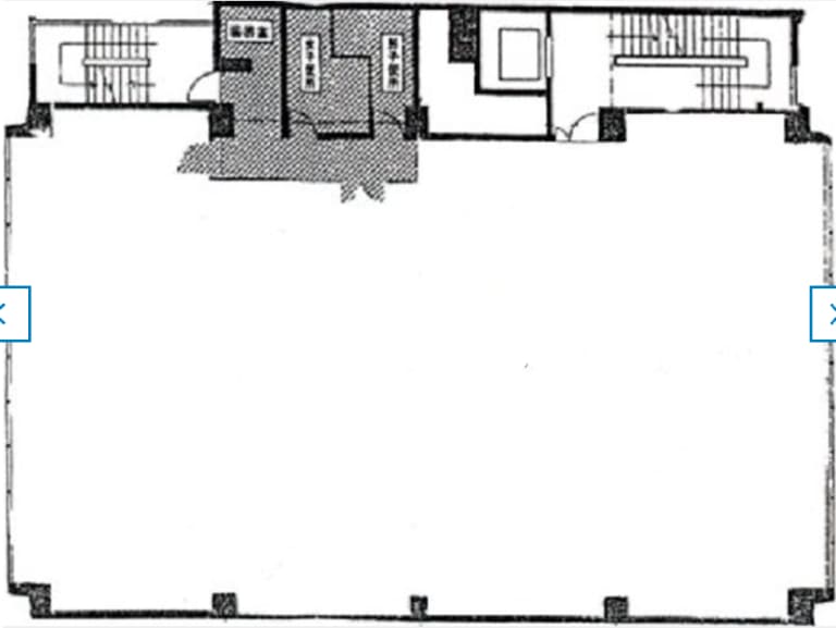
- 101.49坪 (335.5㎡)
- 共益/管理費
- 共益費405,600 円
- 敷金/保証金
- 12ヶ月
- 更新料
- 無
- 礼金/償却
- 無 / 無
- 住所
- 東京都中央区日本橋3丁目5-14
- 構造
- SRC / 地上9階・地下3階
- 規模
- -地上9階 ・ 地下3階
- 主な用途
- -
- 竣工
- 1973年9月
- 契約形態
- -
- 入居可能日
- 即時
- 天井高
- エレベータ
- 1基
- 駐車場
- 空有
- 基準階坪数
- -
その他条件
| 償却 | 無 |
|---|---|
| 更新料 | 無 |
| ごみ処理代 | 9,366円 |
物件情報
| 空室 | - |
|---|---|
| 物件名 | アイ・アンド・イー日本橋ビル |
| 住所 | 東京都中央区日本橋3丁目5-14 |
| 構造 | SRC / 地上9階・地下3階 |
| 竣工 | 1973年9月 |
| 耐震基準 | - |
設備詳細
| 空調 | - |
|---|---|
| トイレ | - |
| 床仕様 | - |
| エレベータ | 1 基 |
| 駐車場設備 | 空有 |
| その他 | 光ファイバー / 大型ビル |
最寄り駅
| 最寄り駅 | 東京 徒歩5分 日本橋 徒歩4分 京橋 徒歩4分 |
|---|
アクセスマップ
ストリートビュー



































































