現在この物件は埋まっています
新宿高砂ビル 5階 65.2坪
賃貸情報
※当サイトの表記はすべて税抜きとなり、消費税が別途加算されます。
- 賃料
- 相談
- 面積
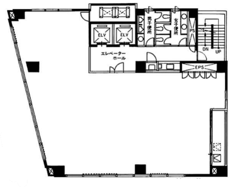
- 65.2坪 (215.55㎡)
- 共益/管理費
- 共益費192,043 円
- 敷金/保証金
- 3,000,000 円
- 更新料
- 無
- 礼金/償却
- 1ヶ月 / 1ヶ月
- 住所
- 東京都新宿区富久町16-5
- 構造
- SRC / 地上11階・地下1階
- 規模
- -地上11階 ・ 地下1階
- 主な用途
- -
- 竣工
- 1992年6月
- 契約形態
- -
- 入居可能日
- 即時
- 天井高
- エレベータ
- 2基
- 駐車場
- 空有
- 基準階坪数
- -
その他条件
| 償却 | 1ヶ月 |
|---|---|
| 更新料 | 無 |
| その他の費用 |
物件情報
| 空室 | あり |
|---|---|
| 物件名 | 新宿高砂ビル |
| 住所 | 東京都新宿区富久町16-5 |
| 構造 | SRC / 地上11階・地下1階 |
| 竣工 | 1992年6月 |
| 耐震基準 | 耐震基準クリア |
設備詳細
| 空調 | - |
|---|---|
| トイレ | 男女別トイレ室内 / 男女別トイレ室外 |
| 床仕様 | - |
| エレベータ | 2 基 |
| 駐車場設備 | - |
| その他 | 新耐震 / 光ファイバー |
最寄り駅
| 最寄り駅 | 新宿御苑前 徒歩5分 新宿三丁目 徒歩7分 四谷三丁目 徒歩8分 |
|---|
アクセスマップ
ストリートビュー


































