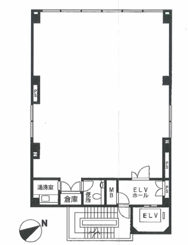
西新宿小林ビル 2階 37.46坪
図面
賃貸情報
※当サイトの表記はすべて税抜きとなり、消費税が別途加算されます。
- 賃料
- 516,200 円
(坪:13,780 円)
- 面積
- 37.46坪 (123.84㎡)
- 共益/管理費
- 管理費32,000 円
- 敷金/保証金
- 6ヶ月
- 更新料
- 新賃料1ヶ月
- 礼金/償却
- 無 / 2ヶ月
- 住所
- 東京都新宿区西新宿7丁目23-9
- 構造
- RC / 地上4階・地下1階
- 規模
- -地上4階 ・ 地下1階
- 主な用途
- -
- 竣工
- 1993年3月
- 契約形態
- -
- 入居可能日
- 即時
- 天井高
- エレベータ
- 1基
- 駐車場
- 空有
- 基準階坪数
- -
その他条件
| 償却 | 2ヶ月 |
|---|---|
| 更新料 | 新賃料1ヶ月 |
| その他の費用 |
物件情報
| 空室 | あり |
|---|---|
| 物件名 | 西新宿小林ビル |
| 住所 | 東京都新宿区西新宿7丁目23-9 |
| 構造 | RC / 地上4階・地下1階 |
| 竣工 | 1993年3月 |
| 耐震基準 | 耐震基準クリア |
設備詳細
| 空調 | - |
|---|---|
| トイレ | 男女別トイレ室内 / 男女別トイレ室外 |
| 床仕様 | - |
| エレベータ | 1 基 |
| 駐車場設備 | 空有 |
| その他 | 新耐震 / 光ファイバー |
最寄り駅
| 最寄り駅 | 新宿 徒歩9分 新宿西口 徒歩6分 西新宿 徒歩3分 |
|---|
アクセスマップ
ストリートビュー























































