現在この物件は埋まっています
ハマ六本木ビル 4階 46.7坪
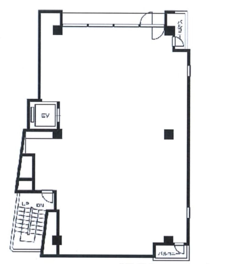
図面
賃貸情報
※当サイトの表記はすべて税抜きとなり、消費税が別途加算されます。
- 賃料
- 相談
- 面積
- 46.7坪 (154.4㎡)
- 共益/管理費
- 共益費無
- 敷金/保証金
- 6ヶ月
- 更新料
- 無
- 礼金/償却
- 無 / 1%
- 住所
- 東京都港区六本木6丁目2-35
- 構造
- SRC / 地上8階
- 規模
- -地上8階
- 主な用途
- -
- 竣工
- 1979年8月
- 契約形態
- -
- 入居可能日
- 即時
- 天井高
- 2.6m
- エレベータ
- 1基
- 駐車場
- -
- 基準階坪数
- -
その他条件
| 償却 | 1% |
|---|---|
| 更新料 | 無 |
| その他の費用 |
物件情報
| 空室 | - |
|---|---|
| 物件名 | ハマ六本木ビル |
| 住所 | 東京都港区六本木6丁目2-35 |
| 構造 | SRC / 地上8階 |
| 竣工 | 1979年8月 |
| 耐震基準 | - |
設備詳細
| 空調 | - |
|---|---|
| トイレ | - |
| 床仕様 | - |
| エレベータ | 1 基 |
| 駐車場設備 | - |
| その他 | - |
最寄り駅
| 最寄り駅 | 六本木 徒歩1分 六本木 徒歩3分 乃木坂 徒歩8分 |
|---|
アクセスマップ
ストリートビュー



































































