現在この物件は埋まっています
杉船ビル東陽町 5階 32.05坪
賃貸情報
※当サイトの表記はすべて税抜きとなり、消費税が別途加算されます。
- 賃料
- 相談
- 面積
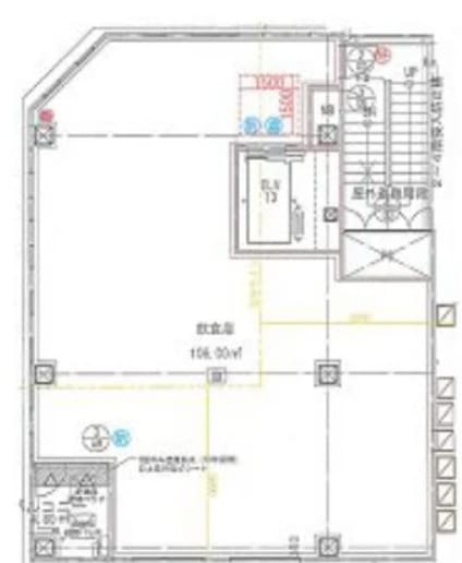
- 32.05坪 (105.95㎡)
- 共益/管理費
- 共益費賃料込
- 敷金/保証金
- 8ヶ月
- 更新料
- 無
- 礼金/償却
- 1ヶ月 / 1ヶ月
- 住所
- 東京都江東区東陽4丁目10-8
- 構造
- 鉄骨造 / 地上7階
- 規模
- 地上7階
- 主な用途
- -
- 竣工
- 2016年5月
- 契約形態
- -
- 入居可能日
- 即時
- 天井高
- エレベータ
- 1基
- 駐車場
- -
- 基準階坪数
- -
その他条件
| 償却 | 1ヶ月 |
|---|---|
| 更新料 | 無 |
| その他の費用 |
物件情報
| 空室 | - |
|---|---|
| 物件名 | 杉船ビル東陽町 |
| 住所 | 東京都江東区東陽4丁目10-8 |
| 構造 | 鉄骨造 / 地上7階 |
| 竣工 | 2016年5月 |
| 耐震基準 | - |
設備詳細
| 空調 | - |
|---|---|
| トイレ | - |
| 床仕様 | - |
| エレベータ | 1 基 |
| 駐車場設備 | - |
| その他 | 光ファイバー |
最寄り駅
| 最寄り駅 | 東陽町 徒歩3分 木場 徒歩10分 南砂町 徒歩17分 |
|---|
アクセスマップ
ストリートビュー

















