現在この物件は埋まっています
FloraYotsuyaビル 1階 15.5坪
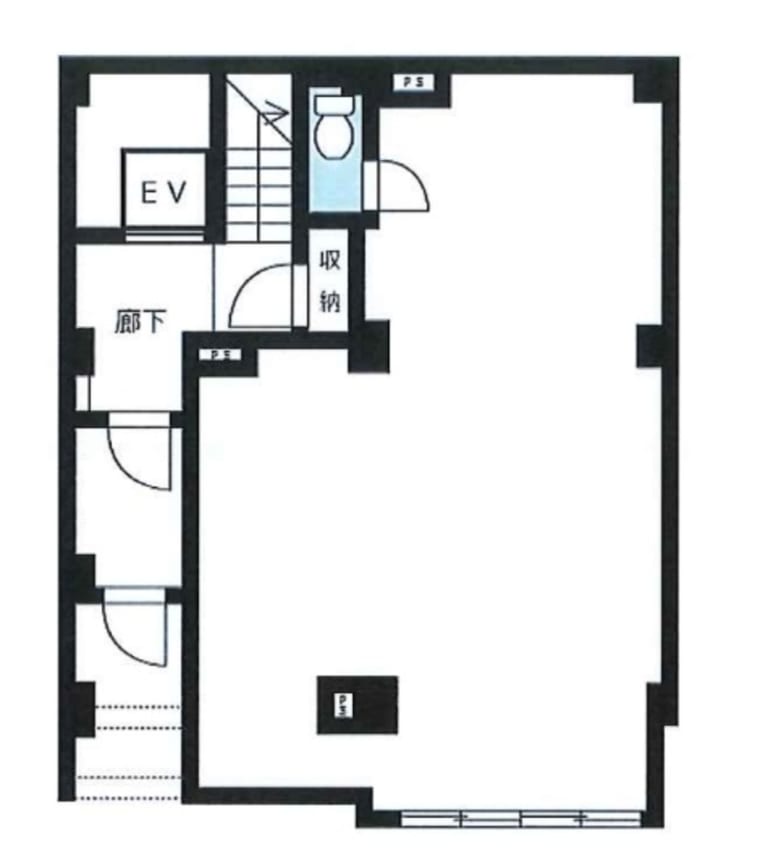
図面
賃貸情報
※当サイトの表記はすべて税抜きとなり、消費税が別途加算されます。
- 賃料
- 相談
- 面積
- 15.5坪 (51.14㎡)
- 共益/管理費
- 共益費無
- 敷金/保証金
- 1,700,000 円
- 更新料
- 無
- 礼金/償却
- 2ヶ月 / 無
- 住所
- 東京都新宿区四谷1丁目9-4
- 構造
- 鉄骨造 / 地上5階
- 規模
- -地上5階
- 主な用途
- -
- 竣工
- 2017年6月
- 契約形態
- -
- 入居可能日
- -
- 天井高
- エレベータ
- -
- 駐車場
- -
- 基準階坪数
- -
その他条件
| 償却 | 無 |
|---|---|
| 更新料 | 無 |
| その他の費用 |
物件情報
| 空室 | - |
|---|---|
| 物件名 | FloraYotsuyaビル |
| 住所 | 東京都新宿区四谷1丁目9-4 |
| 構造 | 鉄骨造 / 地上5階 |
| 竣工 | 2017年6月 |
| 耐震基準 | 耐震基準クリア |
設備詳細
| 空調 | - |
|---|---|
| トイレ | - |
| 床仕様 | - |
| エレベータ | - |
| 駐車場設備 | - |
| その他 | 新耐震 |
最寄り駅
| 最寄り駅 | 四ツ谷 徒歩2分 四ツ谷 徒歩3分 四谷三丁目 徒歩10分 |
|---|
アクセスマップ
ストリートビュー






































































